Продажа готового бизнеса в ЖК Клубный город на реке Primavera, 56,1 м2
Цена:
60 000 000 ₽
Цена м2:
1 069 518 ₽
г Москва, Покровская наб, д 16
Помещение свободного назначения в ЖК комфорт-класса "Гринада". ЖК состоит из 6 корпусов разной этажности: от 8 до 20 этажей. Ближайшая станция метро- Бульвар Дмитрия Донского. Плотный жилой массив. Сложившееся торговое окружение из сетевых арендаторов. Высокий пешеходный трафик. Отдельная входная группа. Зальная планировка. Витринное остекление. Место для вывески. Большая парковка рядом с помещением.
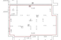
Технические характеристики:
Площадь блока: 142,4 кв м
Электрическая мощность: 50 кВт
Высота потолков: 3,5 м
Арендаторы:
Wildberries и Здравсити
МАП 350 000 руб
Окупаемость: 11 лет

