Аренда склада в г. Химки, 8 250 м2
Аренда в месяц:
9 625 000 ₽
Цена м2/год:
13 992 ₽
Московская обл, г Химки, деревня Перепечино, стр 1Б/1
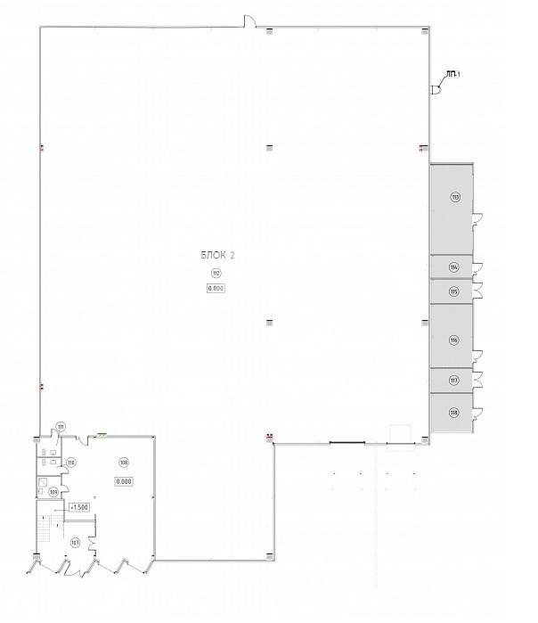
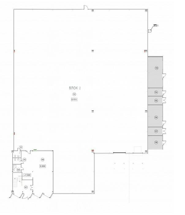
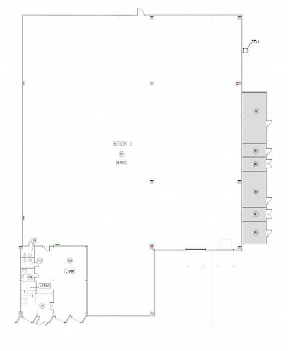
Предлагаем складское помещение в индустриальном парке Есипово-4. Корпус "А", блок 2.
32 км. от МКАД по Ленинградскому шоссе, вблизи трассы А-107 и ЦКАД.
Комплекс складских помещений.
Развитая транспортная инфраструктура.
Цифровой промышленный коворкинг Industrial City в формате Light Industrial прошел сертификацию ассоциации по уровню готовности зданий к облачным подключениям и соответствию стандартам цифровой экономики.
Парки Industrial City подключены к мощным центрам обработки данных, имеют высокий уровень надежности и безопасности.
Готовая инженерная инфраструктура.
Парковка на территории комплекса.
Доступ к производственно-складским помещениям 24/7.
Комплексная эксплуатация объектов.
Охраняемая территория.
Технические характеристики:
Площадь блока: 2159.28 м2.
Производственная площадь - 1849 м2, офис - 310 м2.
Зона погрузки / разгрузки.
Корпуса А,В,С,D - высота - 10 м.
4 ворот.
Электричество: 50 кВт.
Сдача - 2025 г.
Так как корректный адрес отсутствует на Яндекс.Картах, введен ориентировочный.
Возможно увеличение/уменьшение площади.

