Продажа готового бизнеса в ЖК Клубный город на реке Primavera, 56,1 м2
Цена:
60 000 000 ₽
Цена м2:
1 069 518 ₽
г Москва, Покровская наб, д 16
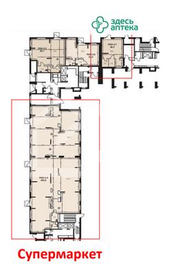
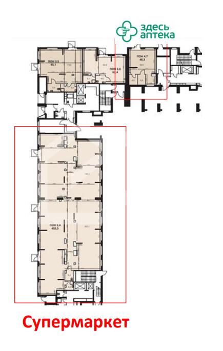
Помещение свободного назначения формата Street Retail с сетевым арендатором "Здесь аптека" в ЖК "1-й Ясеневский". 4 урбан блока ,3 очереди. этажностью от 6 до 18 этажей. Около 7000 жителей. 25 минут пешком от станции метро Тютчевская. В 10 минутах ходьбы от ЖК в 2025 году планируется открытие станции метро Корниловская Троицкой линии. Плотный жилой массив. Интенсивный автомобильный и пешеходный трафик. 1 этаж 13-этажного дома. Отдельный вход с улицы. Зальная планировка. Под чистовую отделку. Витринное остекление. Все коммуникации. Две мокрые точки. Высота потолков 4 метра. Подойдет под любой вид деятельности. 2 корпус.
Сдача 1 квартал 2026 год.
Арендатор:
Аптека "Здесь аптека", ДДА. МАП: 230 000 руб.

