Продажа готового бизнеса в ЖК Клубный город на реке Primavera, 56,1 м2
Цена:
60 000 000 ₽
Цена м2:
1 069 518 ₽
г Москва, Покровская наб, д 16
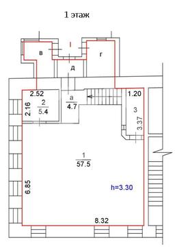
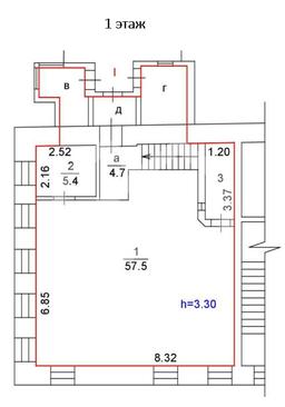
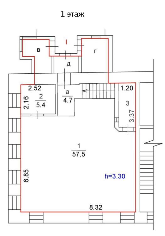
Торговое помещение в жилом 3-этажном доме в ЦАО. Первая линия. Ближайшая станция метро "Красносельская" в 2-х минутах ходьбы. 700 м до Площади трех вокзалов, 400 м до съезда на ТТК. Густонаселенный район с хорошим трафиком и сложившейся инфраструктурой. Помещение находится на цокольном и первом этаже. Подходит под кафе, ресторан, бар, клуб, магазин, бутик, салон. Два торговых павильона. Открытая, зальная планировка. Место для рекламы. Рядом парковка. Эл. мощность: 30 кВт. Высота потолков: 3.3 м. Арендаторы: 1 этаж - Студия красоты - Sarafan; Кафе - Thai little. Цокольный этаж - Офис - Квест кидс; Кафе - Pretty Bubble tea. Общий МАП: 805 000 руб.

