Продажа готового бизнеса в ЖК Новое Медведково, 180 м2
Цена:
55 000 000 ₽
Цена м2:
305 555 ₽
Московская обл, г Мытищи, пр-кт Астрахова, д 14
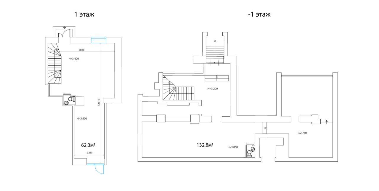
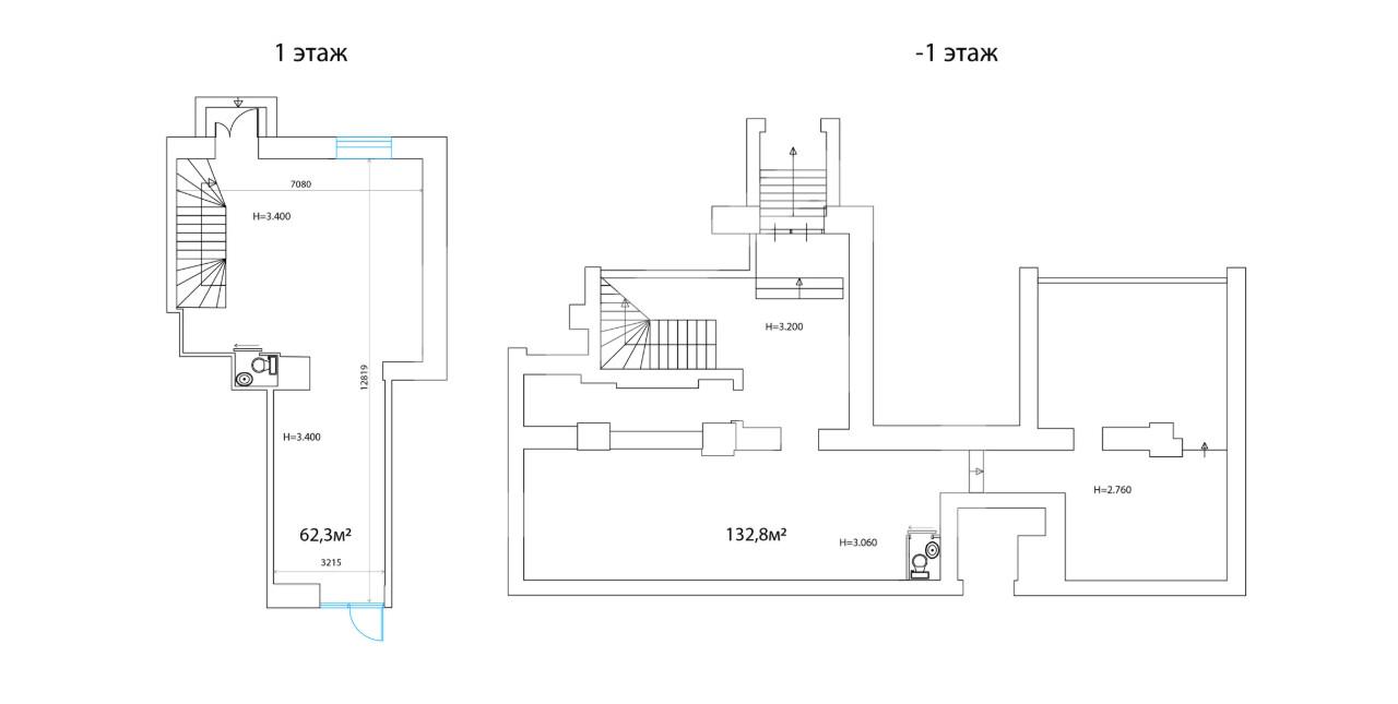
Торговое помещение формата Street Retail на первой линии Ленинградского проспекта. 4 минуты пешком от станции метро Динамо. Плотный жилой массив. Сложившееся торговое окружение. Высокая деловая активность. Сверхинтенсивный пешеходный трафик. 1 этаж + подвал 7-этажного жилого дома. Отдельный вход с фасада. Открытая планировка. Высота потолков: 3,4 м. Витринное остекление. Центральные коммуникации.
Арендатор: Табак.
МАП: 990 000 р.
ГАП: 11 880 000 р.

