Продажа готового бизнеса в ЖК Клубный город на реке Primavera, 56,1 м2
Цена:
60 000 000 ₽
Цена м2:
1 069 518 ₽
г Москва, Покровская наб, д 16
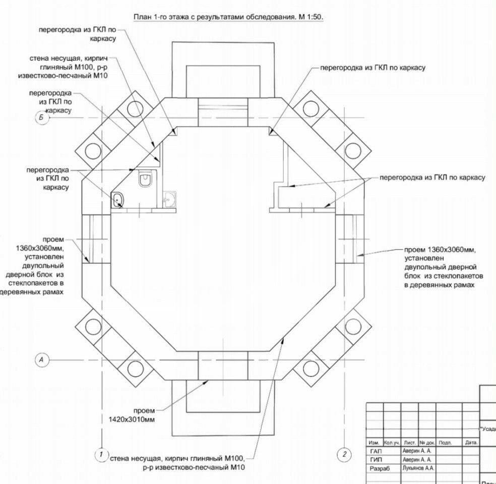
Помещение свободного назначения с арендатором на улице Мантулинской в ЦАО. 15 минут пешком от станции метро Деловой центр. Центр плотного жилого массива. Сложившееся торговое окружение. Сверхинтенсивный автомобильный и пешеходный трафик. 1 этаж. Отдельный вход с улицы. Дизайнерский ремонт. Имеется согласованная летняя веранда. Парковка на улице. Рядом остановки общественного транспорта. Объект культурного наследия регионального значения «Усадьба «Студенец», ХVIII-ХIХ века: белокаменный октагон (водокачка), начало ХIХ в. Электрическая мощность: 30 кВт, с возможностью увеличения. Арендатор: кафе «Маtеs», ДДА. МАП: 450 000 руб. Окупаемость: 10,2 лет.

