Продажа торговой площади на улице Лодочная, 50,4 м2
Цена:
28 440 720 ₽
Цена м2:
564 300 ₽
г Москва, ул Лодочная, д 27 к 2
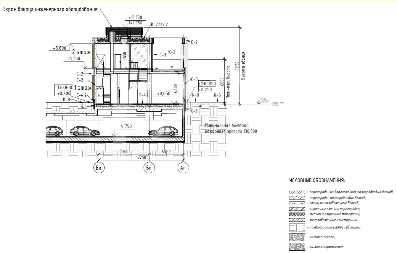
Коммерческое помещение под общепит в жилом комплексе «Клубный город на реке Primavera». Первая линия Покровской набережной. ЖК состоит из 3 кварталов переменной этажности (от 5 до 22 этажей). 13 минут пешком от станции метро Спартак. Район современной жилой застройки. Высокий автомобильный и пешеходный трафик. 1 этаж (178.6 кв. м.), 2 этаж (186.2 кв. м.) и открытая терраса отдельно стоящего здания. 3 отдельные входные группы. Зальная планировка. Панорамное остекление. Вытяжка для общепита. Место для вывески. Парковка вдоль дороги. Есть возможность перепланировки. Электрическая мощность: 80 кВт. Высота потолков: 1 этаж – 4 м.; 2 этаж – 3.65 м.

