Продажа готового бизнеса в ЖК Клубный город на реке Primavera, 56,1 м2
Цена:
60 000 000 ₽
Цена м2:
1 069 518 ₽
г Москва, Покровская наб, д 16
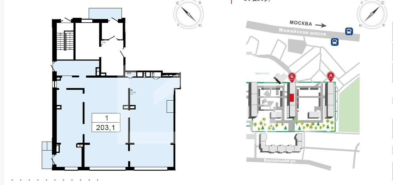
Помещение свободного назначения формата Street Retail с арендатором в ЖК Сердце Одинцово, корпус Б. Первая линия. Комплекс состоит из двух корпусов по 26 этажей, рассчитанных на 1338 квартир. Густонаселенный жилой массив. Развитая инфраструктура: выезд на Можайское шоссе в 250 метрах. Интенсивный пешеходный и автомобильный трафик. Ближайшее метро - Одинцово (12 минут пешком). 1 этаж 26-этажного жилого дома. Отдельный вход с улицы. Зальная планировка. Витринное остекление. Возможность размещения вывески. Зона разгрузки/погрузки. Парковка перед фасадом.
Технические характеристики:
Площадь блока: 203.1 кв.м
Электрическая мощность: 30 кВт
Высота потолков: 3,5 м
Арендатор: Самокат
МАП 300 000
ГАП 3 600 000

