Продажа готового бизнеса в ЖК Клубный город на реке Primavera, 56,1 м2
Цена:
60 000 000 ₽
Цена м2:
1 069 518 ₽
г Москва, Покровская наб, д 16
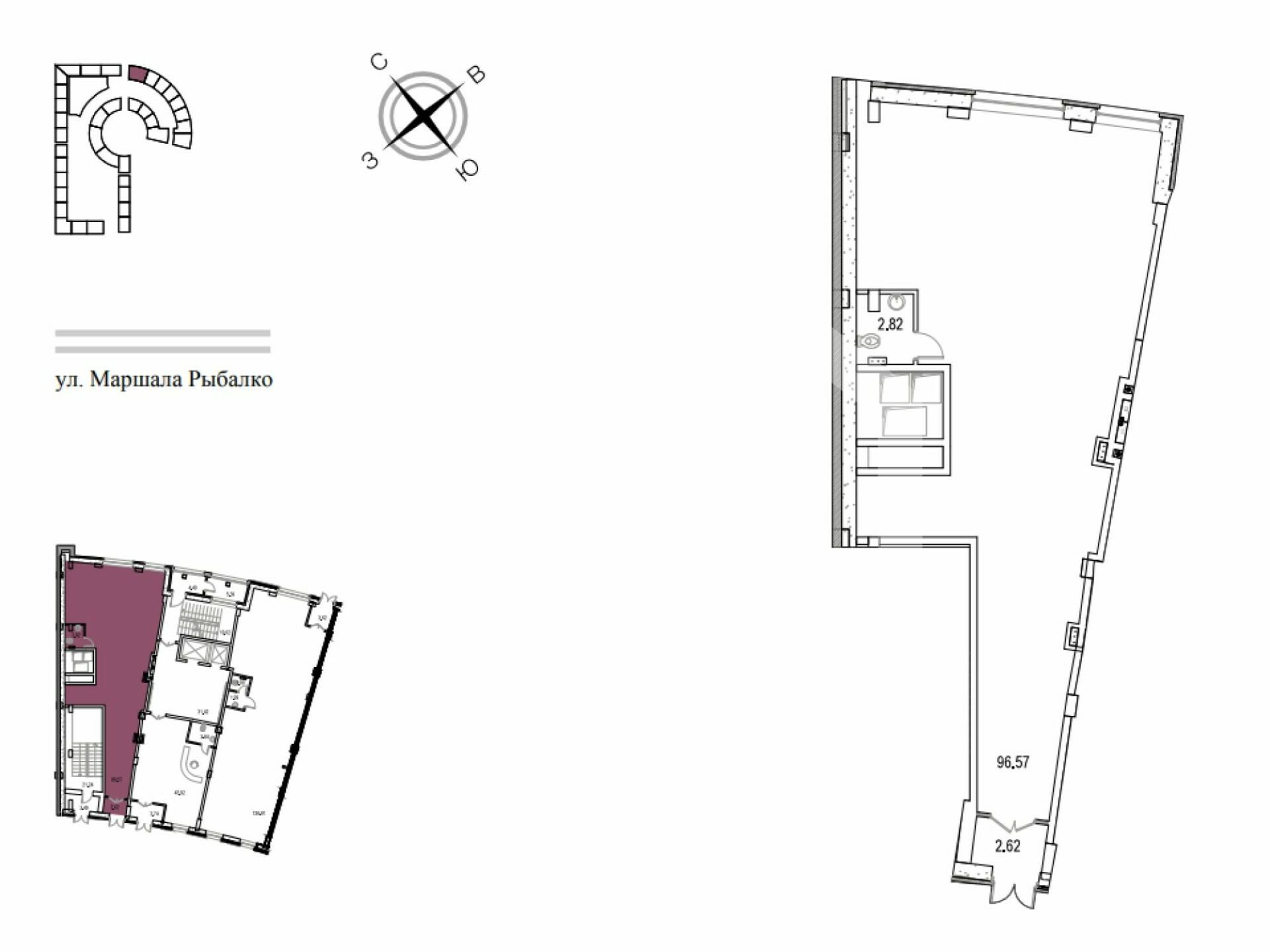
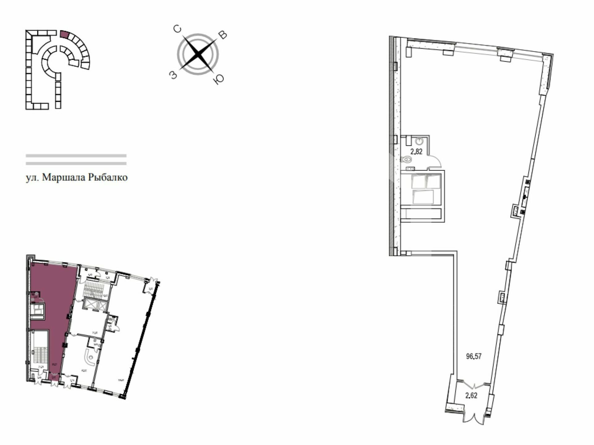
Помещение в ЖК "Маршал" (Корпус 9). Комплекс расположен в густом жилом массиве, в 2-х минутах ходьбы от станции МЦК Панфиловская и в 8 минутах от станции метро Октябрьское Поле, на первой линии улицы Народного Ополчения. Высокий рекламный потенциал помещения обусловлен удачным расположением на первой линии оживленной улицы с высоким пешеходных и автомобильным трафиком. 1-й этаж 11-этажного здания, отдельный вход, витринные окна, высота потолков - 3 м. Арендатор - Гастропаб "Крылья", МАП: 360299 / ГАП: 4323588.

