Продажа готового бизнеса в ЖК Новое Медведково, 180 м2
Цена:
55 000 000 ₽
Цена м2:
305 555 ₽
Московская обл, г Мытищи, пр-кт Астрахова, д 14
Продается уникальный объект недвижимости: ГАБ на огороженной территории!
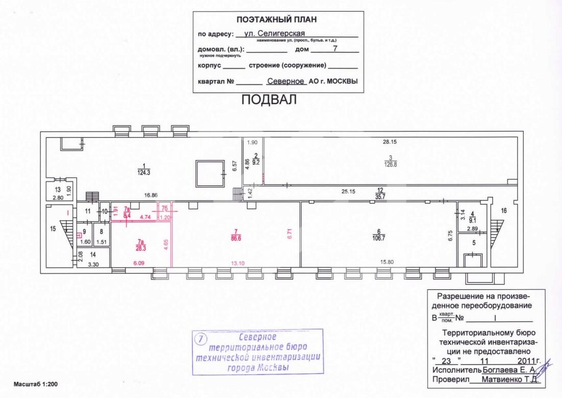
Здание, подлежащее реконструкции имеет хорошую транспортную доступность, расположено вблизи Дмитровского шоссе и станции метро "Селигерская" в лесопарковой зоне.
Участок имеет правильную прямоугольную форму и ровный рельеф. Въезд на территорию со стороны Селигерской улицы. Вокруг здания запроектирована дорога для проезда автомобилей и спецтехники. Также на участке есть вспомогательное нежилое строение, подлежащее реконструкции.
Реконструируемое здание имеет сложившийся архитектурный облик, с четким и лаконичным ритмом фасадов. Современный облик обеспечивается дальнейшим развитием пластики фасадов, проявлением и развитием чередующегося ряда вертикальных пилонов
Удобное расположение:
• Всего в 5 минутах пешком от метро!
• Находится внутри парка и зеленой зоны, что создает комфортную атмосферу для работы и отдыха.
Характеристики объектов:
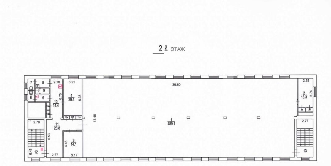
• Здание 1 (основное): 4 этажа + подвал, общая площадь 3 261,9 м²
• Здание 2: одноэтажное, площадью 319,3 м²
• Площадь земельного участка: 0,38 га с долгосрочной арендой до 2063 года
Технические характеристики:
• Высота потолков:
– hп = 3,25 м
– h1-4эт = 4,10 м
– hн = 2,95 м
• Полная инфраструктура: водопровод, канализация, горячая вода, центральное отопление от ТЭЦ, электричество 250 кВА
• Чистовая отделка, кирпичные наружные стены
Арендатор:
• Медицинская сеть клиник Фомина
• МАП: 6 038 400 руб.
• Окупаемость: 8,7 лет

