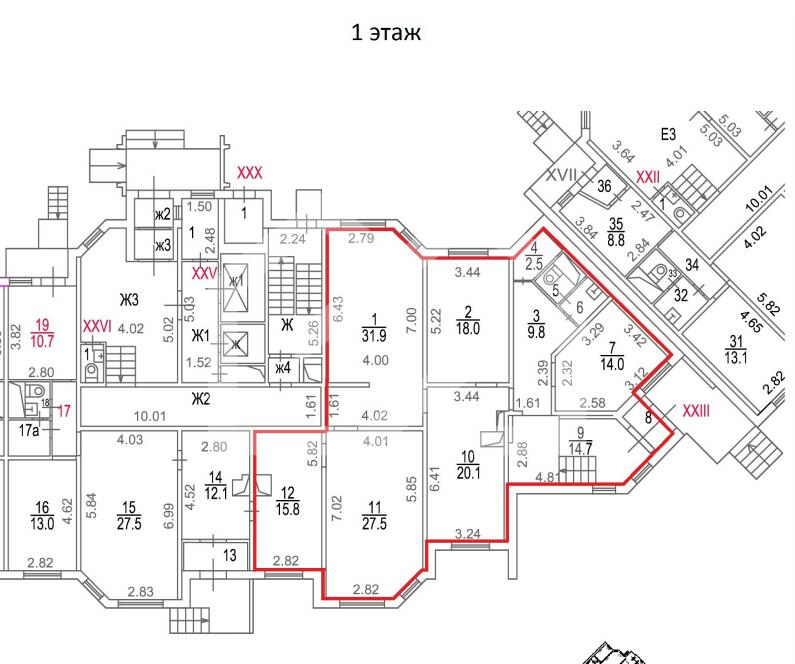
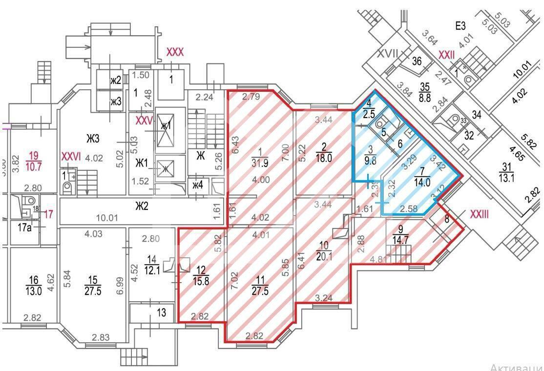
Продажа готового бизнеса в ЖК Клубный город на реке Primavera, 56,1 м2
Цена:
60 000 000 ₽
Цена м2:
1 069 518 ₽
г Москва, Покровская наб, д 16
Помещение свободного назначения с арендатором на первой линии домов. В минуте ходьбы ст. метро ул. Дмитриевского. Рядом остановки общественного транспорта. Центр жилого массива с интенсивным пешеходным и автомобильным трафиком. 1 этаж жилого дома. Отдельный вход с фасада. Все необходимые городские коммуникации, включая горячую и холодную воду, отопление. Планировка кабинетная, с одним санузлом. Есть 5 линий МГТС. Перед зданием бесплатная парковка.
Технические характеристики:
Электрическая мощность: 25 кВт
Высота потолков: 2.8 - 3 м
Арендаторы
Красное и Белое
ДДА на 15 лет
МАП 200000Р.
Цветы
МАП: 50000Р

