Продажа готового бизнеса в ЖК Клубный город на реке Primavera, 56,1 м2
Цена:
60 000 000 ₽
Цена м2:
1 069 518 ₽
г Москва, Покровская наб, д 16
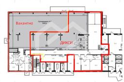
Продажа помещения свободного назначения формата Street Retail с якорным арендатором Дикси в жилом комплексе бизнес-класса "Движение Тушино". ЖК состоит из 3 корпусов переменной этажности (от 13 до 22 этажей), рассчитан на более 1 800 апартаментов. 8 минут пешком от станции метро Спартак. В окружении плотный жилой массив и спортивная инфраструктура. Интенсивный автомобильный и пешеходный трафик. 1 этаж 22-этажного жилого дома. 3 отдельные входные группы. Открытая планировка. Витринное остекление. Парковка перед помещением на 29 машиномест. 1 мокрая точка. Высота потолков: 4,2 м. Арендатор: супермаркет "Дикси" (576.1 кв м.). Вакантная площадь: 297.5 кв. м. МАП: 1 728 300руб.

