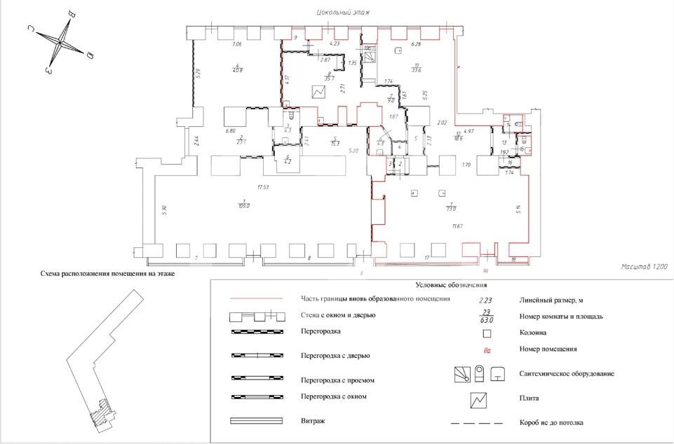
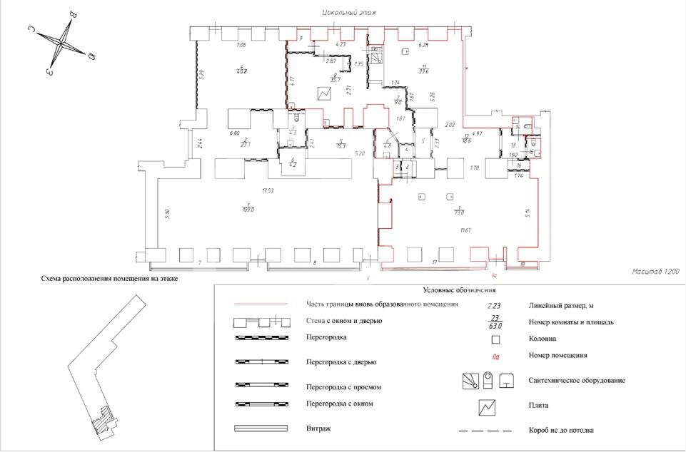
Продажа помещения свободного назначения в г. Химки, 562 м2
Цена:
134 880 000 ₽
Цена м²:
240 000 ₽
141435, Московская обл, г Химки, кв-л Международный, ул Береговая, д 10
Помещение свободного назначения формата торговое помещение в Тверском районе в жилом доме La Ru. Первая линия ул. Петровка. 7 минут пешком от станции метро Трубная. Центр густонаселенного жилого массива. Сложившееся торговое окружение. Сверхинтенсивный автомобильный и пешеходный трафик. Цокольный этаж 5-этажного жилого дома. 2 отдельные входные группы: с улицы и со двора. Витринное остекление. Место для вывески. Парковка вдоль улицы. Напротив пешеходный переход. Электрическая мощность: 75 кВт. Высота потолков: 3.5 м.
