Продажа арендного бизнеса у метро Маяковская, 148,7 м2
Цена:
237 920 000 ₽
Цена м²:
1 600 000 ₽
г Москва, ул 1-я Тверская-Ямская, д 2 стр 1
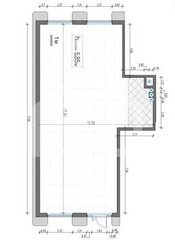
Помещение свободного назначения формата торговое помещение в элитном квартале "Тишинский бульвар". ЖК состоит из 6 корпусов переменной этажности (от 6 до 14 этажей), рассчитанных на 404 квартиры. Отличная транспортная доступность: 12 минут пешком от станции метро "Белорусская". 1.8 км до Звенигородского шоссе, 2 км до Садового кольца, 2.5 км до ТТК, 3 км до Хорошёвского шоссе. Ретейл в элитном квартале с растущим трафиком на Белорусской. Расположен в сформированном инфраструктурном кластере с платёжеспособной аудиторией численностью более 20 тыс. человек. Бесперебойный трафик обеспечен 7 тыс. пешеходов и 16 тыс. автомобилей в сутки. Дома элитного квартала видно издалека — они привлекают внешним обликом. Каждое здание шикарно и имеет свою неповторимую архитектуру. В "Тишинском бульваре" всего 29 ретейловых пространств площадью от 32 до 240 кв. м, свободной планировкой и потолками высотой от 3.2 до 6.7 м. Все помещения имеют отдельный вход и заранее закреплённое место под вывеску. Широкий ассортимент лотов предполагает возможность размещения предприятий общественного питания: ресторана, кофейни, столовой. Современные и качественные лоты оборудованы лучшими в своём классе системами комфорта. 1 этаж 7-этажного жилого дома. Отдельный вход. Свободная планировка. Высота потолков: 5.5 м. Витринное остекление. На подземном паркинге доступна автомойка. Служба комфорта Sminex круглосуточно заботится о квартале, в том числе о ретейл-пространствах. Её главная задача — оказывать первоклассный сервис, сохранять концепцию домов и улучшать качество жизни день за днём. Девелопер проекта — Sminex, перфекционисты Fine Development. Компания создаёт совершенные дома: восхищающие, удобные, красивые, с наилучшим сервисом.
