Продажа готового бизнеса в ЖК Клубный город на реке Primavera, 56,1 м2
Цена:
60 000 000 ₽
Цена м2:
1 069 518 ₽
г Москва, Покровская наб, д 16
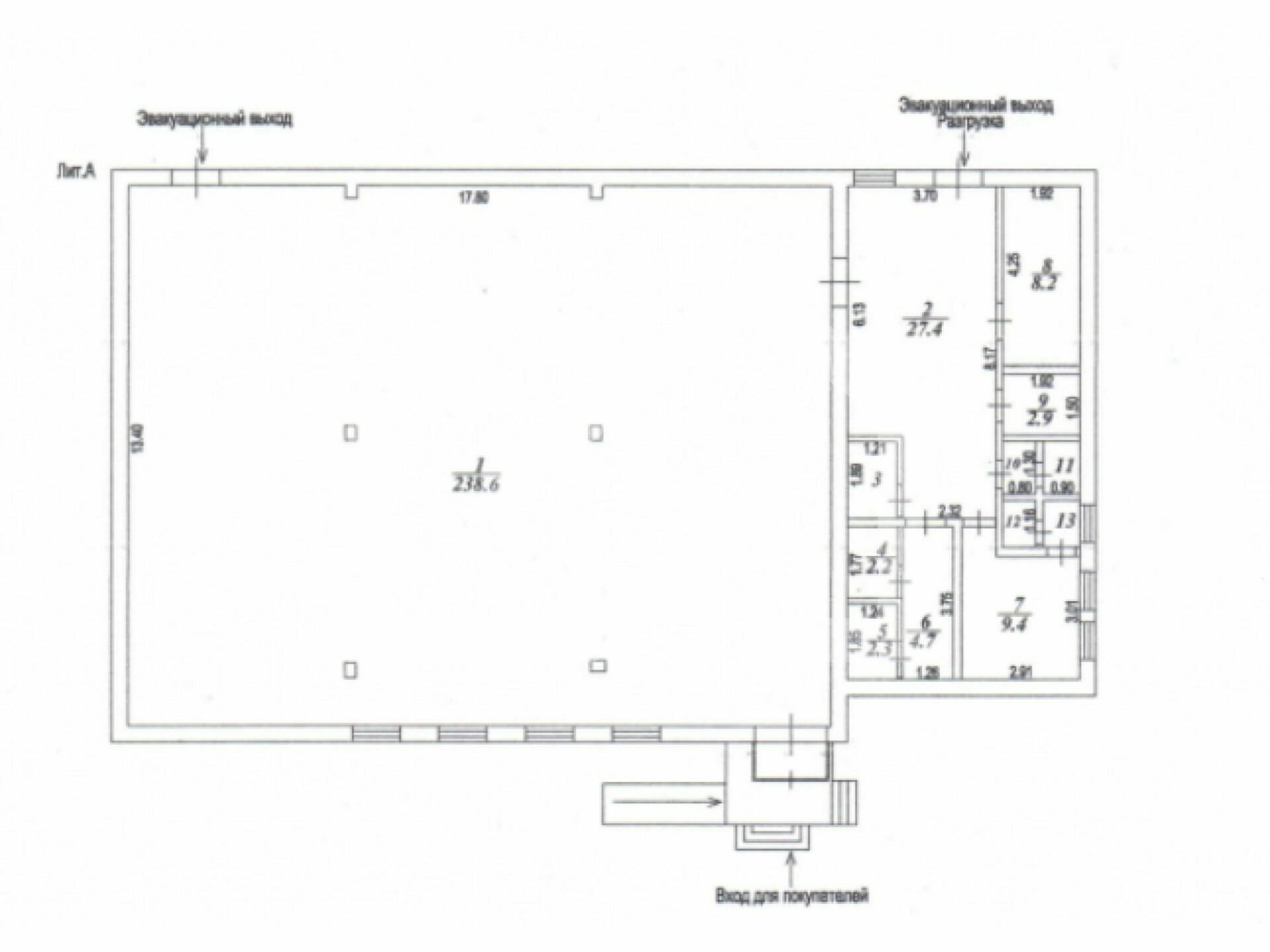
Отдельно стоящее здание с арендатором в центре п. Лужники. Первая линия ул. Центральная. В пешей доступности находится остановка общественного транспорта. Высокий пешеходный и автомобильный трафик. 1 этаж. Отдельный вход. Зона разгрузки. Зальная планировка. Возможность размещения вывески. Полное отсутствие конкуренции в радиусе 3км. Парковка перед фасадом. Электрическая мощность: 33 кВт. Высота потолков: 3 м. Арендатор: "Дикси". МАП: 400 000 руб. Доходность: 11 %. Расчетная окупаемость: 8,9 л.

