Продажа готового бизнеса в ЖК Клубный город на реке Primavera, 56,1 м2
Цена:
60 000 000 ₽
Цена м2:
1 069 518 ₽
г Москва, Покровская наб, д 16
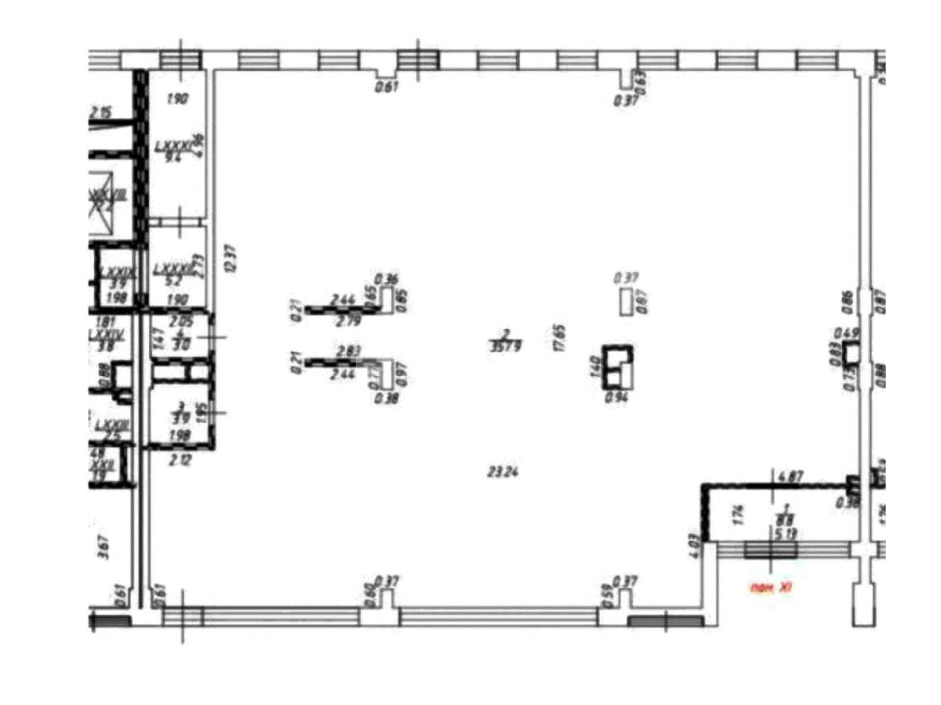
Помещение свободного назначения формата Street Retail с арендаторами в ЖК "Резиденции композиторов" на первой линии 3-го Павелецкого проезда. Исторический район города. ЖК состоит из 10 корпусов переменной этажности (от 2 до 16 этажей). 3.5 км до Подольского шоссе, 5.3 км до Варшавского шоссе, 6 км до Загородного шоссе, 6.3 км до ТТК. Густонаселенный жилой массив. Сложившееся торговое окружение. Высокий автомобильный и пешеходный трафик. 1 этаж 16-этажного жилого дома. 3 отдельных входных группы. Зальная планировка. Электрическая мощность: 100 кВт. Высота потолков: 4 м. Витринное остекление. Возможность размещения вывески. Наземная парковка.
Арендаторы: ВкусВилл (212 кв.м), Гастроном (161 кв.м).
ВкусВилл. МАП: 600 000 руб. Ежегодная индексация 5%.
"Гастроном". МАП со 2-го года: 486 000 рублей. ДДА на 10 лет с апреля 2025 года. Коммунальные платежи оплачивает арендатор. Ежегодная безусловная индексация 5% с 3-го года аренды.
Общий МАП: 1 053 000 руб.

