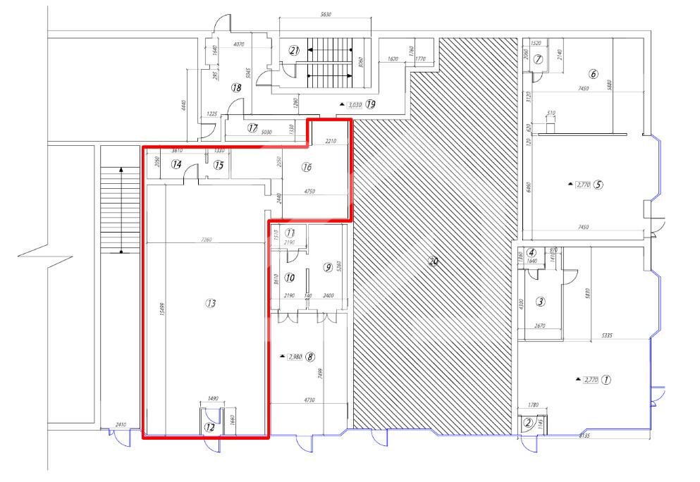
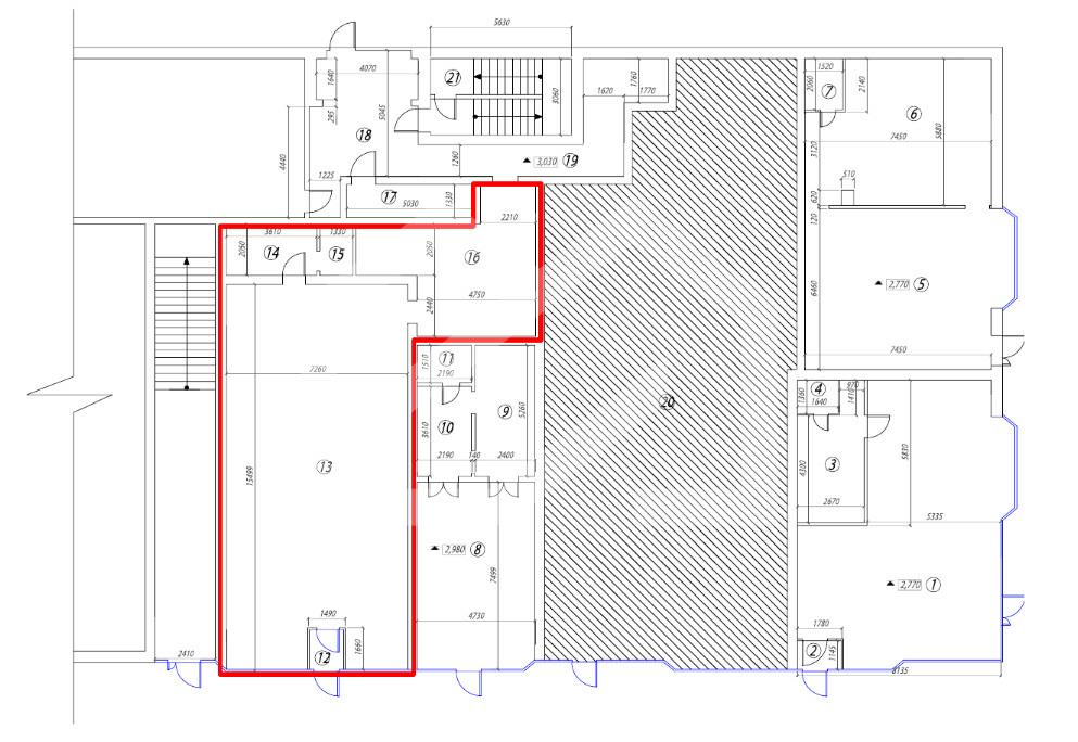
Продажа готового бизнеса в ЖК Клубный город на реке Primavera, 56,1 м2
Цена:
60 000 000 ₽
Цена м2:
1 069 518 ₽
г Москва, Покровская наб, д 16
Торговое помещение с арендатором в отдельно стоящем здании на первой линии Широкой улицы. 12 минут пешком от станции метро Медведково. Плотный жилой массив. Сложившееся торговое окружение. Интенсивный автомобильный и пешеходный трафик. 1 этаж 2-этажного нежилого здания. Отдельный вход с фасада. Зальная планировка. Витринное остекление. Место для вывески. Электрическая мощность: 15 кВт. Высота потолков: 6м. Арендаторы: ЗооЗавр. МАП: 413 963 руб.

