Аренда арендного бизнеса у метро Парк культуры, 590,6 м2
Аренда в месяц:
610 000 000 ₽
Цена м²/год:
12 394 164 ₽
Площадь: 590,6 м²
г Москва, ул Пречистенка, д 27
Парк культуры
9 мин.
Кропоткинская
10 мин.
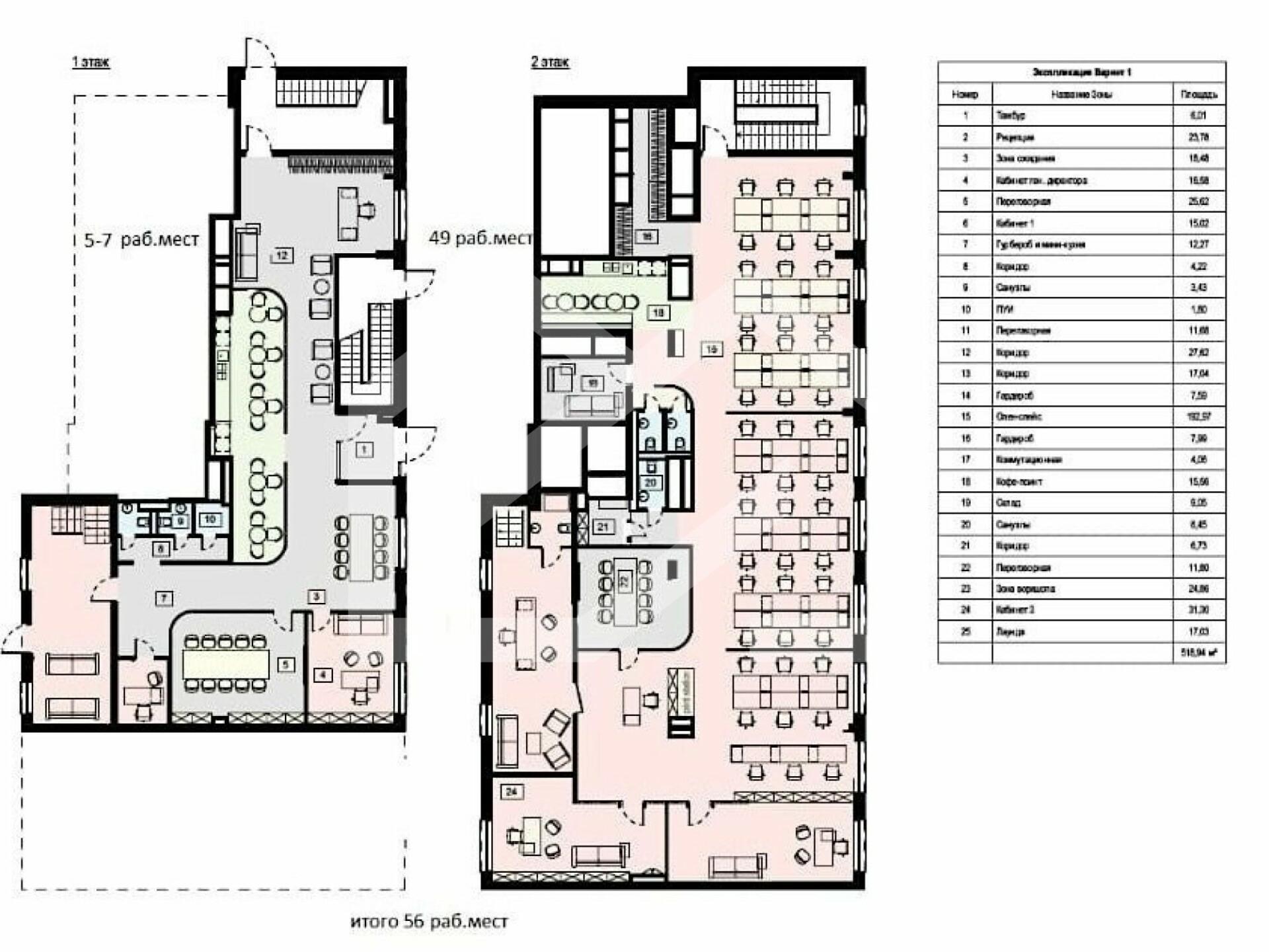
Офисное помещение в ЖК премиум-класса «CITY PARK». 11 минут пешком от станции метро Выставочная. Выезд на ТТК в 500 м. Рядом главный деловой центр города — Москва-Сити. Комплекс состоит из 6 корпусов, этажностью от 6 до 21 этажей. 1, 2 этажи 20-этажного здания. 1 этаж: 231,7 кв.м. 2 этаж: 386,1 кв.м. Отдельный вход с улицы. Смешанная планировка. Офисная отделка. Панорамное остекление. Канальное кондиционирование. Приточно-вытяжная вентиляция. Светодиодное освещение. СКУД по технологии Face ID c учетом рабочего времени и доступом через мобильное приложение. Офис без проводов. Подземный паркинг.
