Продажа производственного помещения в ЖК «Остафьево», 714 м2
Цена:
89 964 000 ₽
Цена м²:
126 000 ₽
г Москва, Любучанский пер, д 1 к 3
Предлагается производственно-складское помещение общей площадью 792 кв. м. в Люберцах.
Преимущества:
Современный складской комплекс на территории индустриального парка «Завод», Люберцы. Центр крупной промышленной зоны.
6 минут пешком до станции МЦД-3 «Панки», 10 минут до станции «Люберцы».
Развитая транспортная логистика: 8 км от МКАД (20 минут на авто) и 2 км от трассы М5 «Урал».
Инфраструктура: магазины, аптеки, кафе - всё в шаговой доступности.
Собственная котельная, магистральный газ, все центральные коммуникации.
Для сотрудников: рядом жилой массив и транспортные узлы.
Собственная управляющая компания.
Огороженная территория.
Парковка.
Технические характеристики:
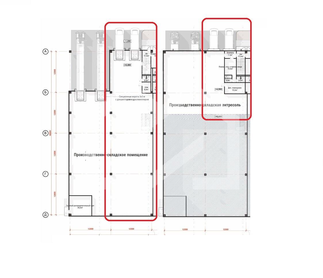
Площадь блока: 792 кв. м, из них:
- 1 этаж - 576 кв. м;
- антресоль - 216 кв. м.
Есть возможность адаптации под нужны заказчика.
2 доковых узла: для фуры и для малотоннажного/легкового авто.
Высота потолков: 10 метров, антресоль 4,5 м.
Нагрузка на пол: 6 т/м², в зоне мезонина: 1,5 т/м².
Выделенная мощность: 15 кВт.
