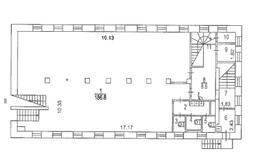
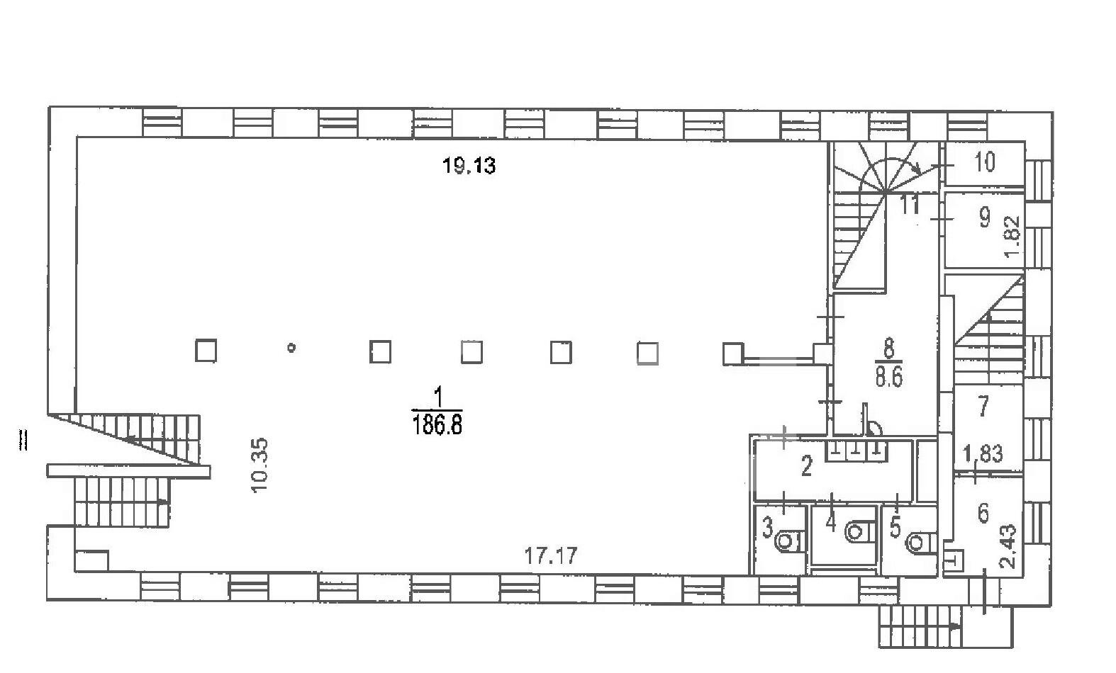
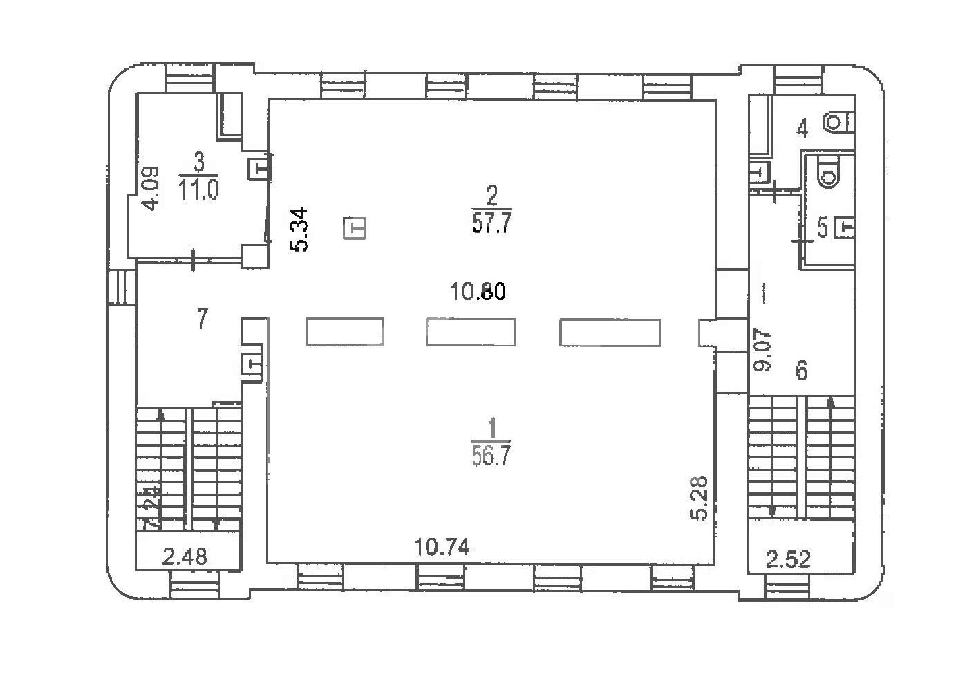
Аренда здания на улице Последний переулок, 742 м2
Аренда в месяц:
2 640 000 ₽
Цена м2/год:
42 684 ₽
г Москва, Последний пер, д 22
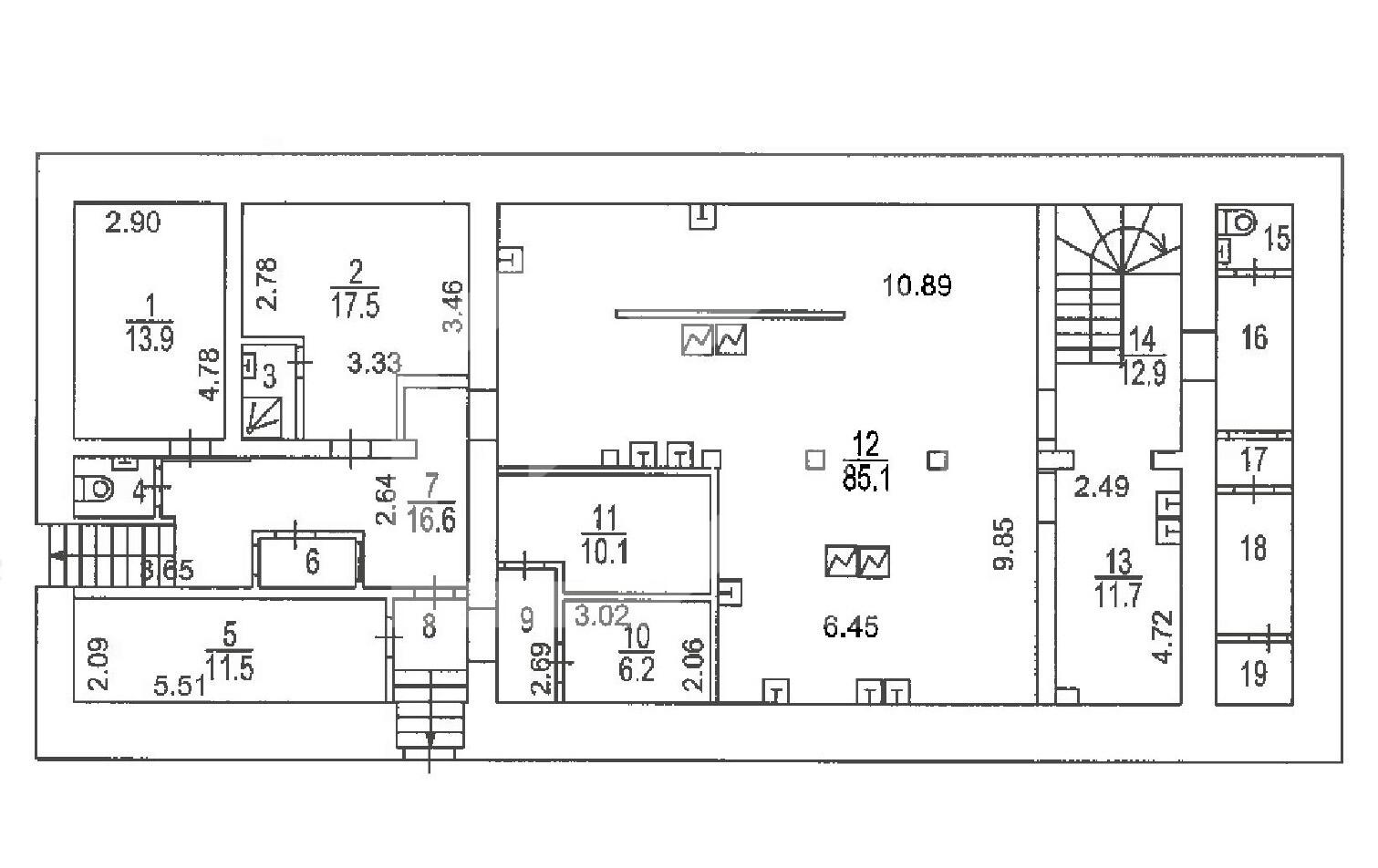
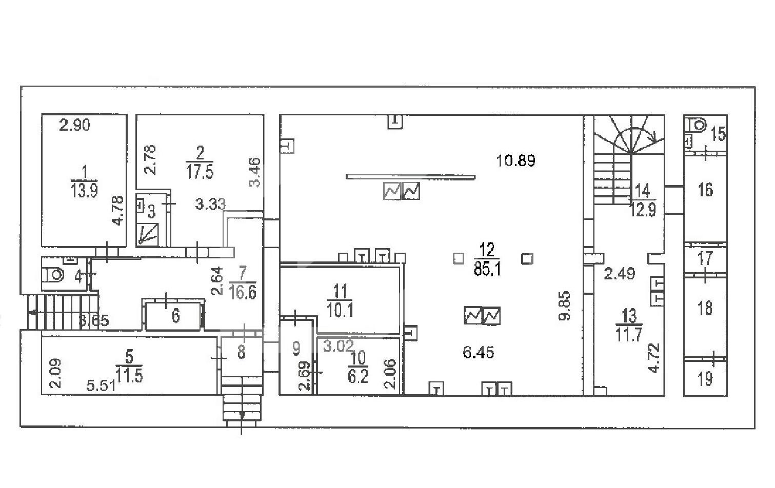
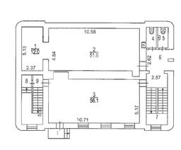
Особняк на Садовнической улице, д 84 стр. 3, 7 - это комплекс двух административных зданий в шаговой доступности от метро "Павелецкая" ( 6 минут пешком), расположившийся на первой линии домов. Площадь двух зданий — 1184, 3 кв.м. (стр. 3 — 680, 5, стр. 7 — 503, 8). Площадь летней террасы — 280 кв.м. Здание находится в Центральном округе Москвы. По соседству имеет множество объектов инфраструктуры: банкоматы, салоны красоты, кафе, гостиница, медицинский центр, нотариальная контора, аптека, ресторан и супермаркет. Этажность — 3. Приточно-вытяжная вентиляция, центральное кондиционирование. Инженерия — видеонаблюдение, система пожаротушения, круглосуточная охрана, круглосуточный доступ. Подойдет для офиса, гостиницы, модного дома. Доступна открытая городская парковка на 20 м/м.
