Продажа склада в г. Люберцы, 1 472 м2
Цена:
206 080 000 ₽
Цена м2:
140 000 ₽
Московская обл, г Люберцы, поселок Чкалово, ул Токаревская, д 15
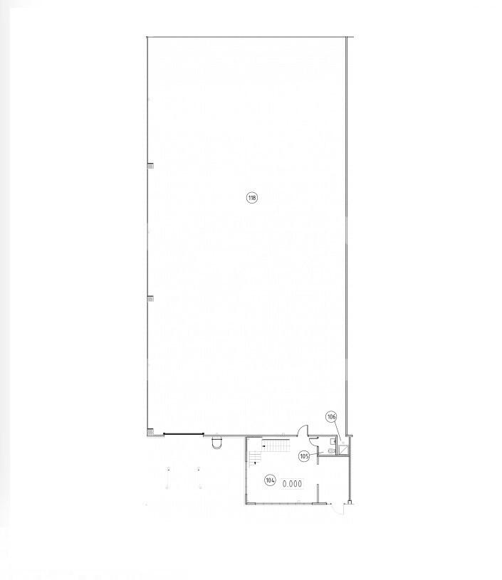
Предалается складское помещение общей площадью 752 кв. м. в индустриальном парке Есипово-4. Корпус: F.
Преимущества:
32 км. от МКАД по Ленинградскому шоссе, вблизи трассы А-107 и ЦКАД.
Комплекс складских помещений.
Развитая транспортная инфраструктура.
1 этаж.
Зона погрузки / разгрузки.
Цифровой промышленный коворкинг Индастриал Сити в формате Лайт Индастриал прошел сертификацию ассоциации по уровню готовности зданий к облачным подключениям и соответствию стандартам цифровой экономики.
Парки Индастриал Сити подключены к мощным центрам обработки данных, имеют высокий уровень надежности и безопасности.
Готовая инженерная инфраструктура.
Парковка на территории комплекса.
Доступ к производственно-складским помещениям 24/7.
Комплексная эксплуатация объектов.
Охраняемая территория.
Технические характеристики:
Площадь блока: 752 кв. м.
Производственная площадь - 642 кв. м, офис - 110 кв. м,
Электричество: 25 кВт + можно увеличить.
Нагрузка на пол: 6 т/кв. м.
Высота потолков: 10 м.
Количество грузовых парковочных мест - 1+1.
Количество легковых парковочных мест - 3.
Так как корректный адрес отсутствует на Яндекс.Картах, введен ближайший.
