Аренда офиса на улице Нахимовский проспект, 2 084 м2
Аренда в месяц:
6 356 200 ₽
Цена м2/год:
36 600 ₽
г Москва, Нахимовский пр-кт, д 58
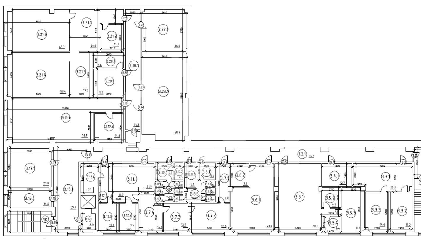
Бизнес-центр расположен в Останкинском районе Северо-Восточного административного округа города Москвы. В пешей доступности от здания находятся станции метро "Алексеевская" "ВДНХ" и "Рижская". Выгодная транспортная доступность обеспечивается близким расположением Третьего транспортного кольца и удобным выездом на Московскую кольцевую автодорогу по Ярославскому шоссе. Рядом со зданием пролегают проспект Мира и улицы Шереметьевская, Звёздный бульвар, Большая Марьинская и Староалексеевская. Помещение на 3 этаже общей площадью 955,5 кв. м. Выполнена качественная отделка: напольное покрытие - коммерческий линолеум. Потолочная отделка типа Армстронг, стены качественная покраска. Наземная парковка.
