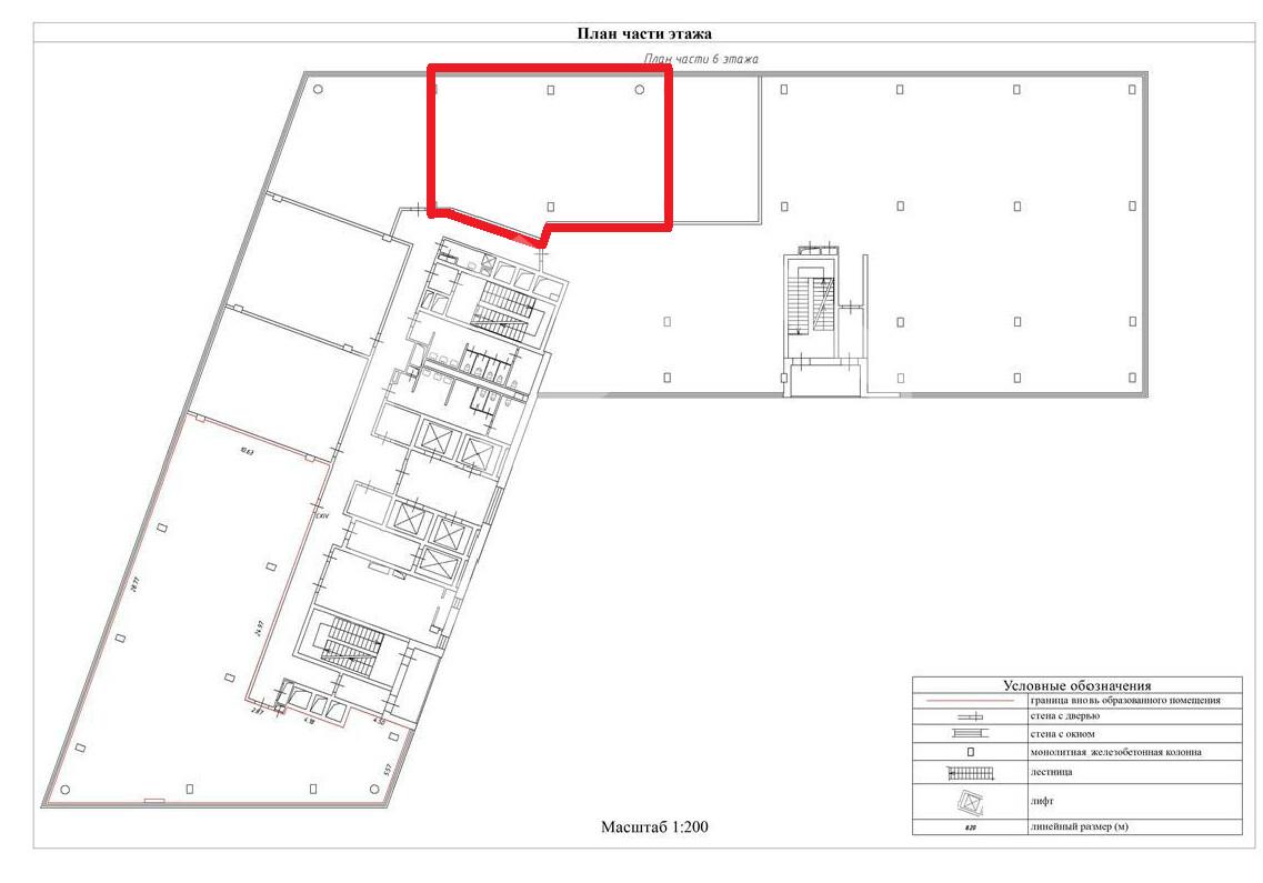
Аренда офиса на улице Загородное шоссе, 508 м2
Аренда в месяц:
1 058 333 ₽
Цена м2/год:
24 996 ₽
г Москва, Загородное шоссе, д 1
Офисное помещение в БЦ класса А "G10". 14 минут пешком от станции метро "Румянцево". 430 м до Киевского шоссе, 2.8 км до Филимонковского шоссе, 3.8 км до МКАД, 6 км до Филатовского и Калужского шоссе, 6.5 км до Боровского шоссе. Развитая инфраструктура района.
6 этаж 9-этажного здания. Смешанная планировка. Эксклюзивный, дизайнерский ремонт и мебель. Высота потолков: 3.2. Электрическая мощность: 100 кВт. Панорамное остекление. В здании установлено современное техническое оснащение: системы вентиляции и кондиционирования воздуха, современные инженерные системы, немецкие лифты Thyssen, противопожарные системы. В БЦ действует пропускной режим (вход – по электронным пропускам или документам), круглосуточно работают камеры внутреннего и внешнего видеонаблюдения, охранная сигнализация. На первом этаже расположена служба ресепшн с комфортным лобби для ожидания. Также в бизнес-центре G10 есть кафе-ресторан. Охраняемый подземный и наземный паркинг на 495 машиномест. Рядом остановка общественного транспорта.

