Продажа здания у метро Трубная, 1 717,4 м2
Цена:
750 000 000 ₽
Цена м²:
436 706 ₽
г Москва, 1-й Колобовский пер, д 6 стр 3
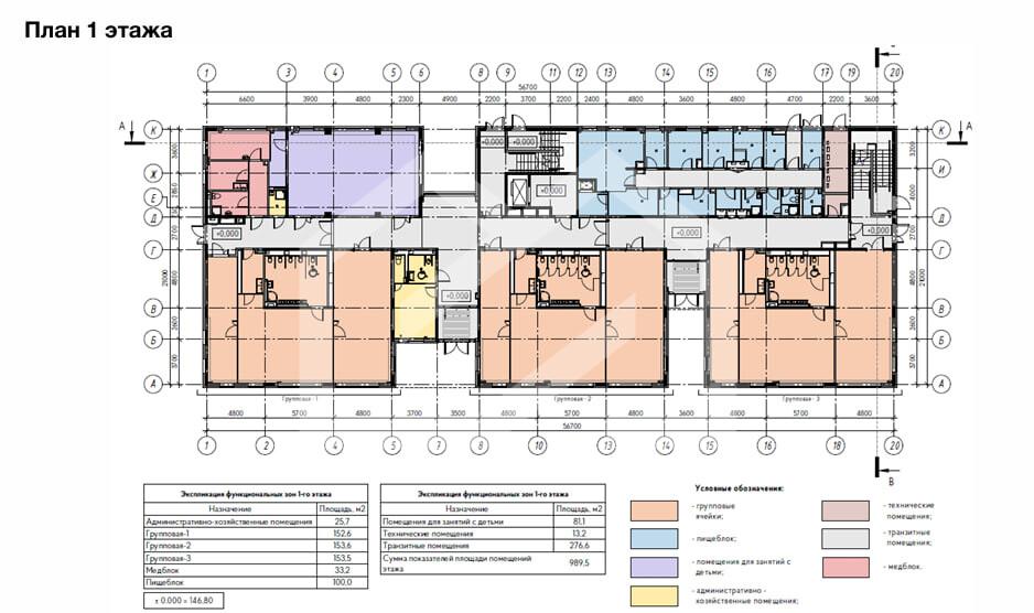
Продажа отдельно стоящего здания с ремонтом под детский садик на 110 мест в ЖК «Красноказарменная 15».
Комплекс расположен в историческом районе Лефортово — популярном столичном квартале, где сочетаются развитая инфраструктура, современная застройка и близость к центру города.
Высота потолков 1 и 2 этажи - 3,3м, подвал 2,48-2,57м.
Земля в общедолевой собственности, будет межевание участка в ближайшее время.
Локация
г. Москва, район Лефортово
ул. Красноказарменная, владение 15
в пешей доступности от метро:
«Авиамоторная» — 12 минут пешком
«Лефортово» — около 15 минут пешком
Инфраструктура вокруг
Пять современных башен по 26 этажей, ЖК сдан и заселен
Большое число семей с детьми — основная целевая аудитория сада
Магазины, кофейни, сервисы на первых этажах
Пешая доступность до Лефортовского парка, набережной Яузы, школ, вузов, торговых и культурных центров (ArtPlay, ТЦ «Город»)
Характеристики здания:
Этажность: 2 этажа + подвальный уровень
Площадь: 2 866,7 м²
Назначение: дошкольная образовательная организация
Состояние: с чистовой отделкой, без мебели и оборудования
Территория: огороженная, благоустроенная, 4 809 м²
Современная архитектура здания, собственная территория и наличие сразу двух станций метро поблизости делают проект удобным как для локальных жителей, так и для родителей из соседних районов.
Финансовые условия:
Стоимость: 230 000 000 ₽
