Продажа готового бизнеса у метро Белорусская, 277 м2
Цена:
70 000 000 ₽
Цена м2:
252 707 ₽
г Москва, Ленинградский пр-кт, д 10
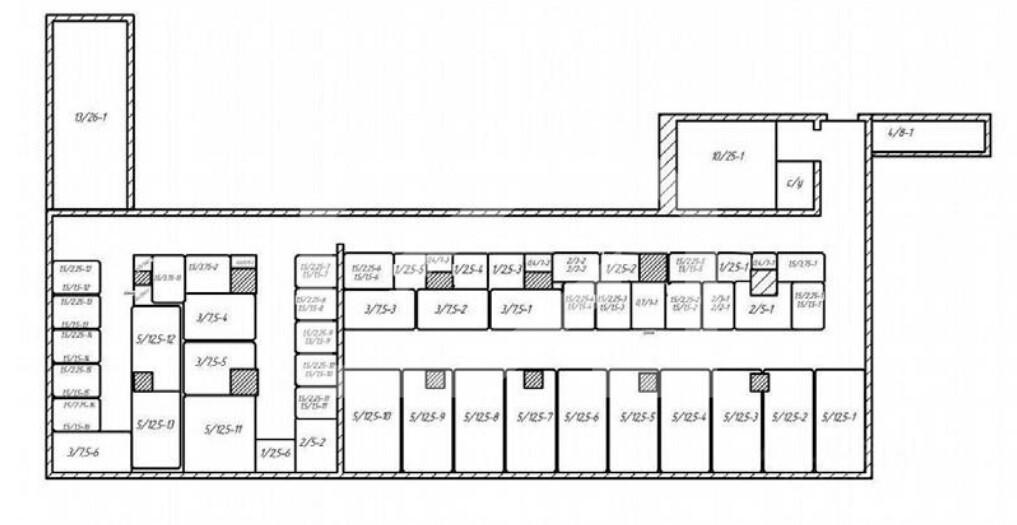
Продается складское помещение формата Self Storage с международным арендатором "Твой Склад". Метро: Дмитровская, 13 мин. пешком. Продаются и помещение, и работающая франшиза "Твой Склад", и текущие арендаторы. 78 ячеек, один кадастр. Надежный консервативный доход. Помещение работает без Вашего участия, все делает оператор Твой Склад. Заполняемость сейчас 92-95%. Индексация каждые полгода по умолчанию. Арендаторы есть всегда. Объект запущен 25 июля 2024 года, и уже через 4 месяца заполнили его на 75%. Прозрачная экономика. Предоставлю выписку с отдельного расчетного счета объекта по запросу. Администрирование собственником не требуется, все "детские болячки" устранены. Полностью всё взаимодействие с Арендаторами организует Твой Склад за 15% от выручки (они не попадают на наш счет). Отдельный вход. Осмотр 24/7. Оператор предоставит код доступа. Поступления уже после оплат комиссий оператора (Твоего Склада) и комиссий банка на Ваш р/сч: Среднее значение 326 000 руб. / мес. Приходы от аренды не фиксированные, потому что все ячейки разного размера и соответственно различные по стоимости, а так же оплаты могут быть на месяц вперед, на 3, на 6 и на 12 месяцев. Соответственно, чем больший период оплатит арендатор, тем больше скидок он получает, 5%, 10% или даже 15%. Заполняемости на 100% не бывает, потому что всегда остается пара микроскопических ячеек, которые редко пользуются спросом, но они всё равно нужны для более рационального использования пространства. Всего 78 ячеек. Из расходов ежемесячно: ТБО, Коммуналка, Интернет.

