Продажа готового бизнеса у метро Сухаревская, 75 м2
Цена:
55 000 000 ₽
Цена м2:
733 333 ₽
г Москва, Большая Сухаревская пл, д 16/18 стр 2
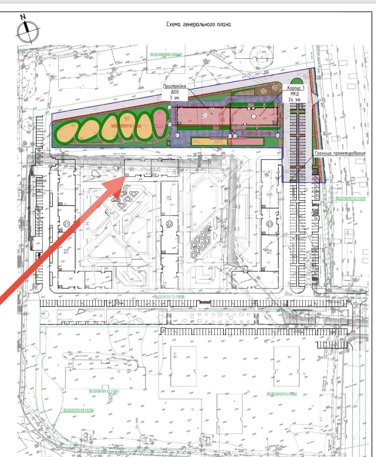
Помещение свободного назначения формата Street Retail с арендатором в ЖК "Квартал Строгино". Угол на первой линии. Жилой комплекс состоит из трех крупных корпусов переменной этажности (от 12 до 24 этажей). До станции метро Строгино 10 минут на автомобиле. Плотный жилой массив. Активный пешеходный и автомобильный трафик вдоль помещения. 1 этаж. Отдельный вход с улицы. Открытая планировка. Витринное остекление. Место для вывески. Парковка на территории комплекса. Выдача ключей: 4 квартал 2026 г.
Арендатор: кофейня "Здрасте". МАП: 600 000 руб.

