Продажа склада на улице Индустриальная, 1 440 м2
Цена:
87 500 000 ₽
Цена м²:
60 763 ₽
Воронежская обл, Новоусманский р-н, село Бабяково, ул Индустриальная, д 3
Предлагаем складское помещение общей площадью 911 м2 в индустриальном парке Есипово-5.
Преимущества:
32 км. от МКАД по Ленинградскому шоссе, вблизи трассы А-107 и ЦКАД.
Комплекс складских помещений.
Развитая транспортная инфраструктура.
Открытая планировка: цифровой промышленный коворкинг Industrial City в формате Light Industrial прошел сертификацию ассоциации по уровню готовности зданий к облачным подключениям и соответствию стандартам цифровой экономики.
Парки Industrial City подключены к мощным центрам обработки данных, имеют высокий уровень надежности и безопасности.
Готовая инженерная инфраструктура.
Парковка на территории комплекса.
Доступ к производственно-складским помещениям 24/7.
Комплексная эксплуатация объектов.
Охраняемая территория.
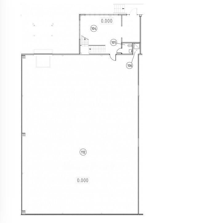
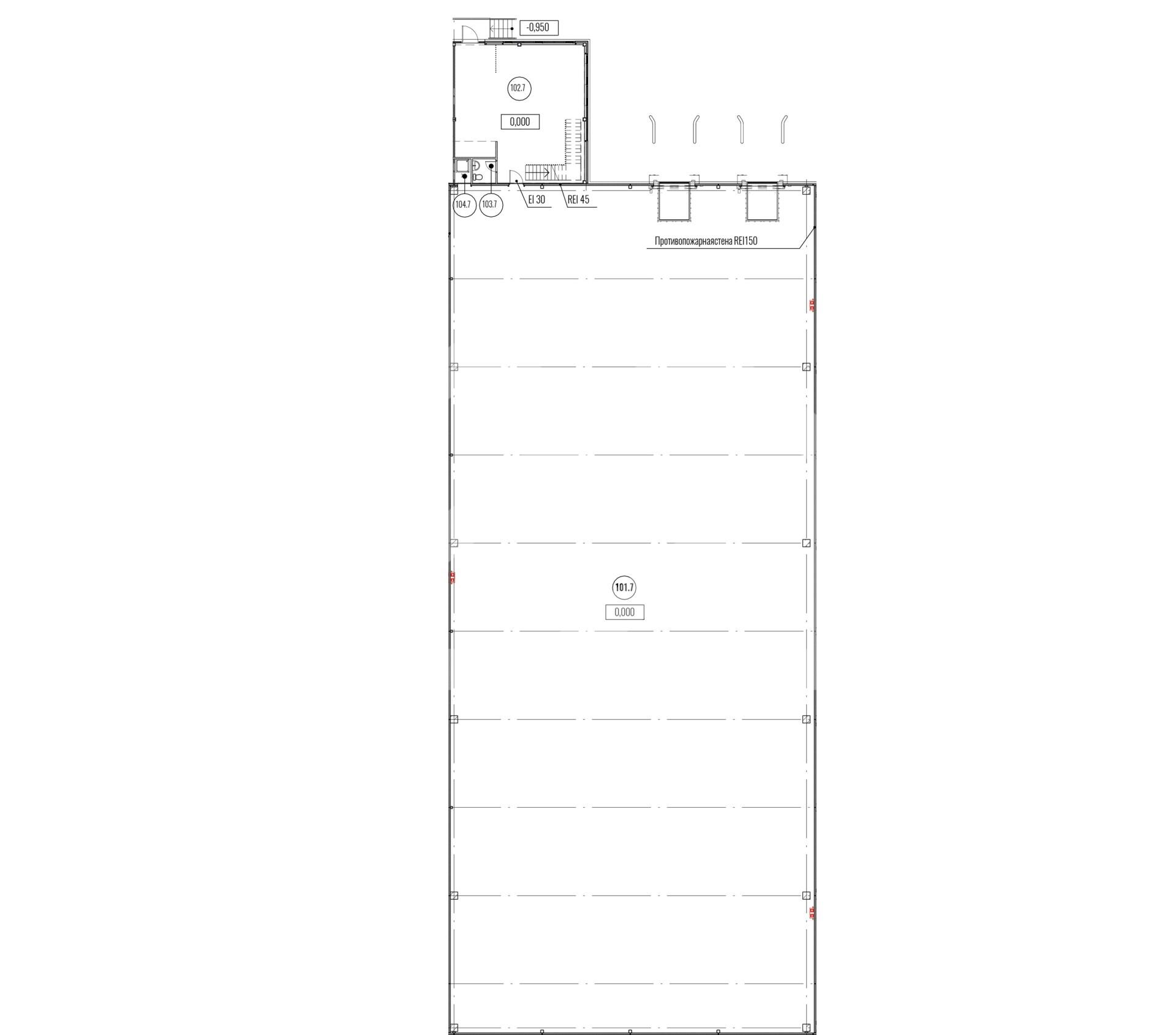
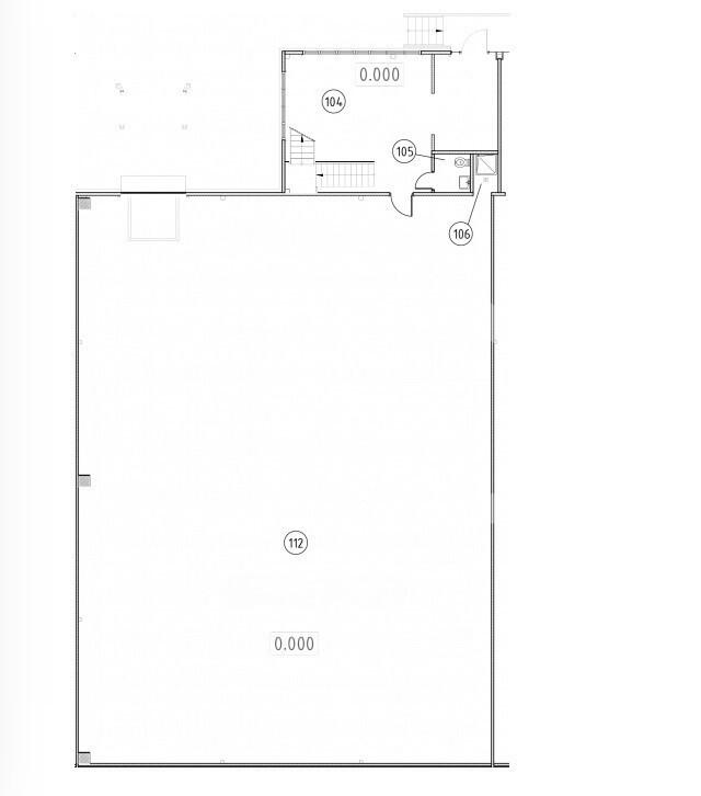
Технические характеристики: Корпус: D
Общая площадь 911,55 м2
Производственная площадь - 805,50 м2, офис - 106,05 м2.
Электричество: 25 кВт, с возможностью увеличения.
Количество грузовых парковочных мест - 2.
Количество легковых парковочных мест - 3.
Сдача - 4кв 2026г
