Аренда склада на улице Октябрьская, 2 130 м2
Аренда в месяц:
2 982 000 ₽
Цена м2/год:
16 800 ₽
г Москва, Филимонковский р-н, деревня Большое Покровское, ул Октябрьская, д 42
Предлагаем складское помещение в комплексе класса "А", общей площадью 9402.8 кв. м. в Раменском городском округе, сельское поселение Гжельское.
Преимущества объекта:
39 км от МКАД.
Удобный выезд на ЦКАД, А 107 (Московское малое кольцо) и Егорьевского шоссе.
Хорошая транспортная доступность.
Рядом остановки общественного транспорта.
1 км от ж/д станции "52 км" Казанского направления.
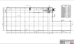
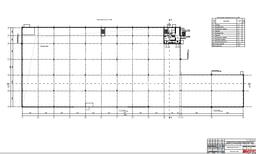
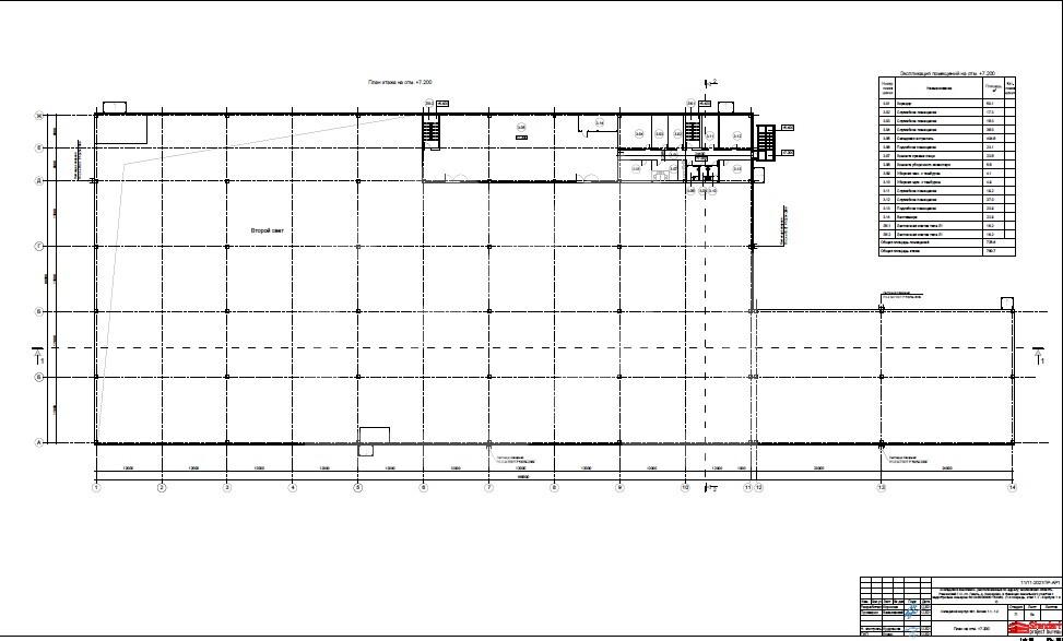
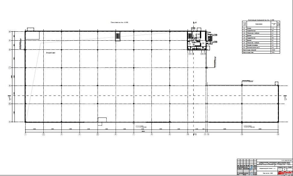
Общая площадь складского комплекса: 158 050 кв.м.
Технические характеристики:
Общая площадь блока: 9402,8 кв. м., из них:
площадь первого этажа: 8487 кв. м;
площадь мезонинов и офисных помещений: 915 кв. м.
Рабочая высота потолка: 12 метров.
Нагрузка на пол: 8 тонн/кв. м.
Антипылевое покрытие пола.
Количество доков: 12, оборудованы докшелтерами и доклевеллерами.
Спринклерная система пожаротушения и сигнализация.
Выделенная электрическая мощность - 150 кВт.
НДС и OPEX включены в арендную ставку.
Арендные каникулы предусмотрены.
Подходит под фарм и алкогольные лицензии.
Прямой представитель собственника, без комиссии для арендатора.

