Продажа склада в г. Раменское, 1 454 м2
Цена:
189 000 000 ₽
Цена м2:
129 986 ₽
Московская обл, г Раменское, деревня Кулаково, ул Вишневая, д 19
Производственно-складская база на Клушинском шоссе рядом с д. Поярково.
Преимущества объекта:
-6 км от Ленинградского ш.;
-15 км от аэропорта Шереметьево;
-подходит под шумное/грязное производство;
-ЗУ в собственности;
-объект огорожен забором с воротами;
-возможно открытое хранение;
-закрытая территория;
-парковка на участке.
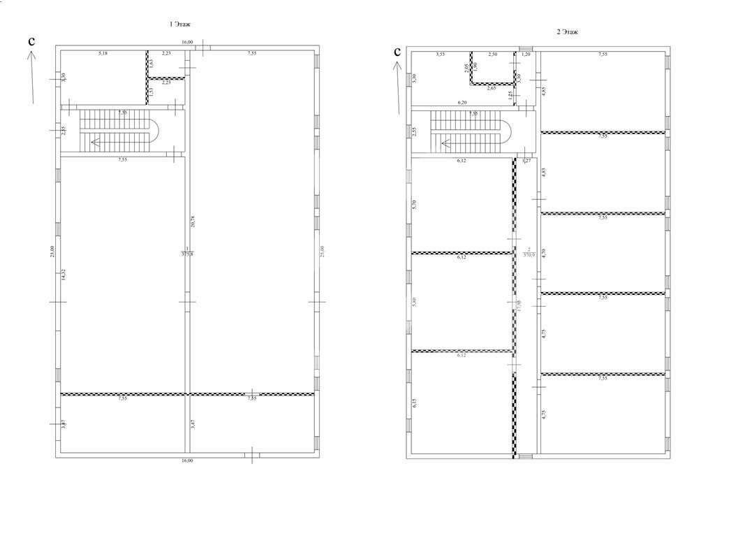
Состав комплекса:
-Ангар 720 кв. м. + антресоль 60 кв. м., высота потолка: 6 м;
-2-этажный производственно-офисный корпус: 720 кв. м. (производство, офис, общежитие), из них:
производственная площадь: 360 кв. м. - 1 этаж,
АБК: 360 кв. м. - 2 этаж, офисы, кабинеты.
Участок 0,4 Га.
ВРИ ЗУ: Для размещения авторемонтной базы и производства строительных материалов.
Технические характеристики:
-отопление, водопровод и канализация - автономные;
-электрическая мощность: до 150 кВт.

