Продажа арендного бизнеса у метро Киевская, 52 м2
Цена:
75 000 000 ₽
Цена м²:
1 442 307 ₽
г Москва, 1-й Тружеников пер, д 15
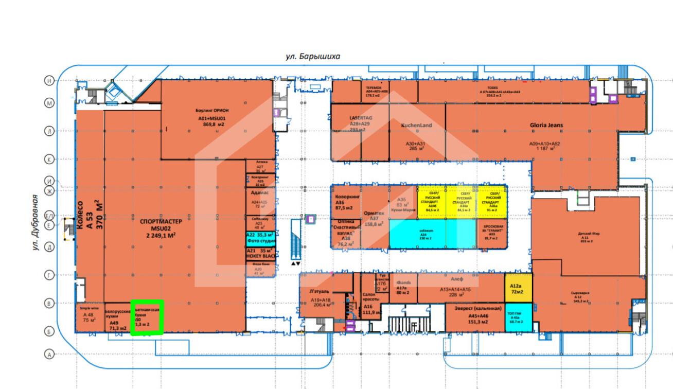
Помещение свободного назначения с арендатором в МФК "Митино Парк" на пересечении ул. Дубравная и Барышиха. Первая линия. 7 минут пешком от станции метро "Митино". 1.7 км до Пятницкого шоссе, 2.3 км до Пенягинского шоссе, 3.2 км до МКАД, 4.7 км до Волоколамского шоссе, 6.3 км до Ильинского шоссе. Плотный жилой массив. Сложившееся торговое окружение. Интенсивный автомобильный и пешеходный трафик. 1 этаж 3-этажного здания. Отдельный вход из торговой галереи. Открытая планировка. Витринное остекление. Зона разгрузки/погрузки. Возможность размещения вывески. Наземная парковка на 1 000 машиномест. Рядом остановка общественного транспорта.
Информация об арендаторе:
-арендатор: Вьетнамская кухня;
-МАП: 400 000 руб./мес. (АП в месяц с учётом НДС + 10% от ТО)
-доходность: 6.51%.
