Аренда торговой площади у метро Алексеевская, 5 м2
Аренда в месяц:
70 000 ₽
Цена м2/год:
168 000 ₽
г Москва, пр-кт Мира, д 112
Кадастровый номер: 77:17:0120114:27560
Предлагается в аренду помещение свободного назначения формата Street Retail, в 6 минутах пешком от станции метро Филатов Луг. Густонаселенный жилой массив. Активный автомобильный и пешеходный трафик. 1 этаж 15-этажного жилого дома.
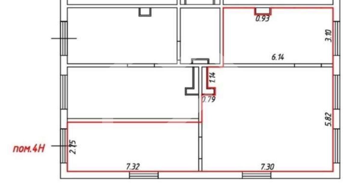
Общая площадь: 80.6 м2.
Возможность размещения вывески.
Наличие мокрой точки, заведены все необходимы коммуникации.
Высота потолков: 3.7 м.
Электричество: 16 кВт.
Отдельный вход с улицы.
Дом полностью сдан и заселен.
Звоните или пишите, оперативно и в любое время организуем просмотр!

