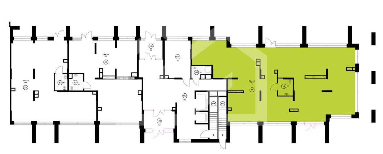
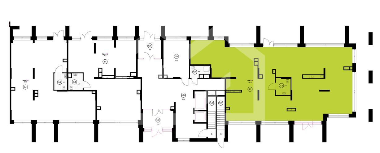
Продажа торговой площади в ЖК «Пригород Лесное», 131,22 м2
Цена:
37 700 000 ₽
Цена м2:
287 303 ₽
Московская обл, г Видное, пгт Мисайлово, мкр Пригород Лесное, ул имени Героя России Филипова, д 10
Помещение свободного назначения формата Street Retail в ЖК "Пушкино Град" на первой линии ул. Нижняя. ЖК состоит из 3-х 17-этажных корпусов, рассчитанных на 1 192 квартиры. 20 минут пешком от ж/д станции "Заветы Ильича" и 5 минут на автомобиле от ж/д станции "Правда". 2.8 км до Ярославского шоссе, 3 км до Степаньковского шоссе, 5 км до Ельдигинского шоссе. Плотный жилой массив. Отсутствие конкурентной среды. Стабильный автомобильный и пешеходный трафик. 1 этаж 17-этажного жилого дома. Угловой блок. Отдельный вход с улицы. Открытая планировка. Электрическая мощность: 40 кВт. Высота потолков: 5 м. Витринное остекление. Возможность размещения вывески. Наземная парковка напротив помещения. Выдача ключей: 3 квартал 2026 г.

