Аренда офиса на улице Загородное шоссе, 508 м2
Аренда в месяц:
1 058 333 ₽
Цена м2/год:
24 996 ₽
г Москва, Загородное шоссе, д 1
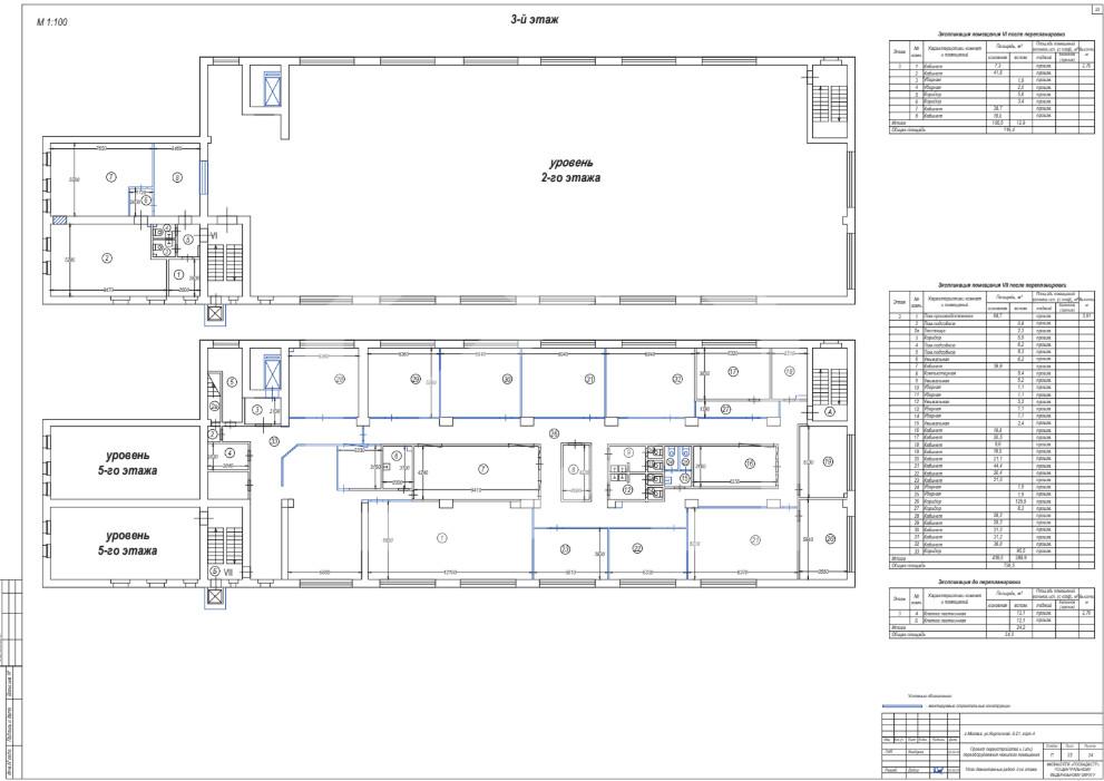
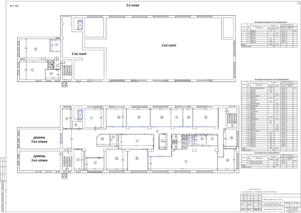
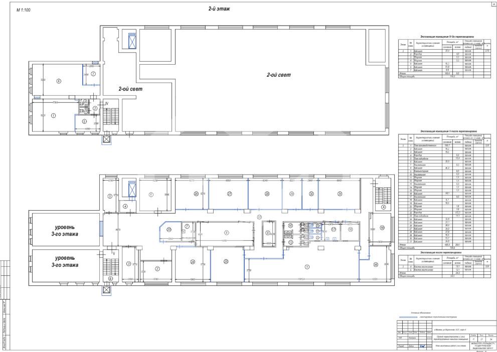
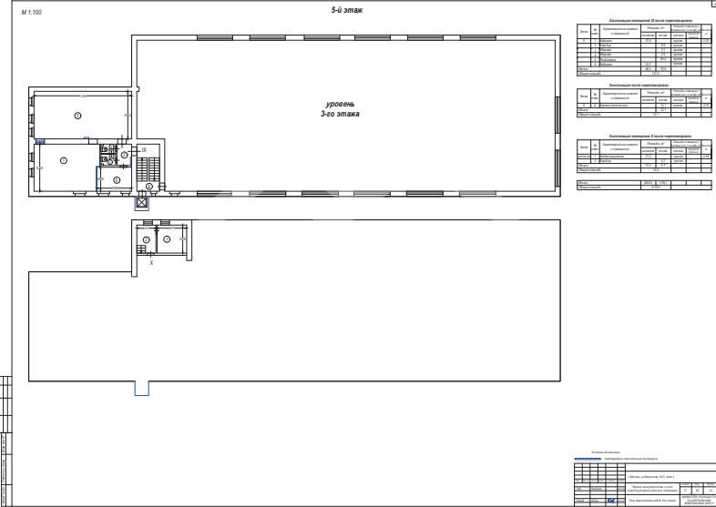
Бизнес-центр находится по адресу: Москва, Кирпичная улица, 21 к.4, расположен недалеко от станций метро «Семёновская», «Измайлово». Магистрали: Прямой выезд на Измайловское шоссе, ТТК (3,5 км), МКАД (12 км), СВХ (менее 1 км). Офисное помещение 2000 кв. м. занимает с 2 по 5 этаж. Смешанная планировка (open-space, кабинеты, переговорные, кофе-поинты). Лифты OTIS грузопассажирский и пассажирский. 20 охраняемых парковочных мест. Круглосуточная охрана, СКУД, шлагбаум с бесконтактным доступом, видеонаблюдение.

