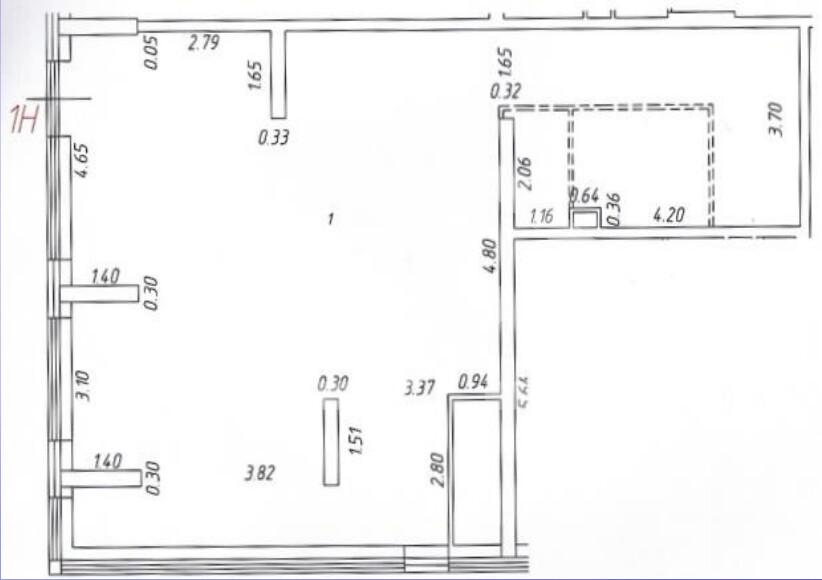
Аренда торговой площади в ЖК Прокшино, 91,7 м2
Аренда в месяц:
300 000 ₽
Цена м2/год:
39 252 ₽
г Москва, р-н Коммунарка, Прокшинский пр-кт, д 7
Помещение свободного назначения формата Street Retail в жилом комплексе бизнес-класса "Символ". Улица Крузенштерна. ЖК состоит из 34 корпусов, дома переменной этажности (от 3 до 28 этажей). В пешей доступности от станции метро Площадь Ильича, Римская. Удобный выезд на Третье транспортное кольцо, шоссе Энтузиастов. Плотный жилой массив. Интенсивный автомобильный и пешеходный трафик. 1 этаж 22-этажного жилого дома. Отдельный вход с улицы . Витринное остекление. Место для вывески. Все коммуникации (электричество, водоснабжение, канализация). Парковка на территории. Электрическая мощность: 19 кВт. Высота потолков: 5,3 м.
