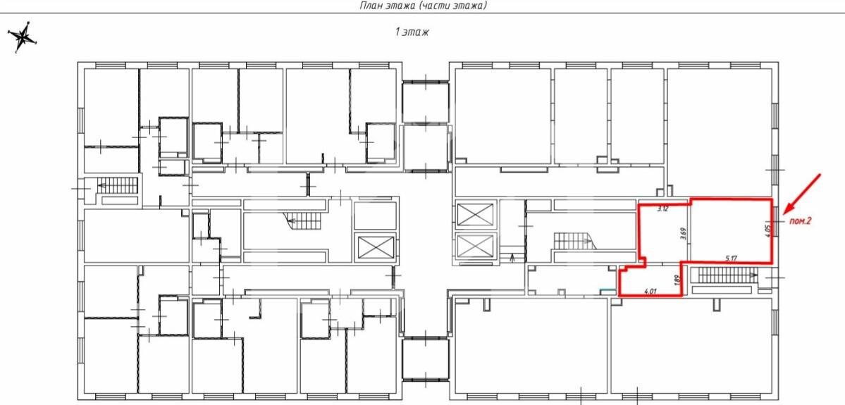
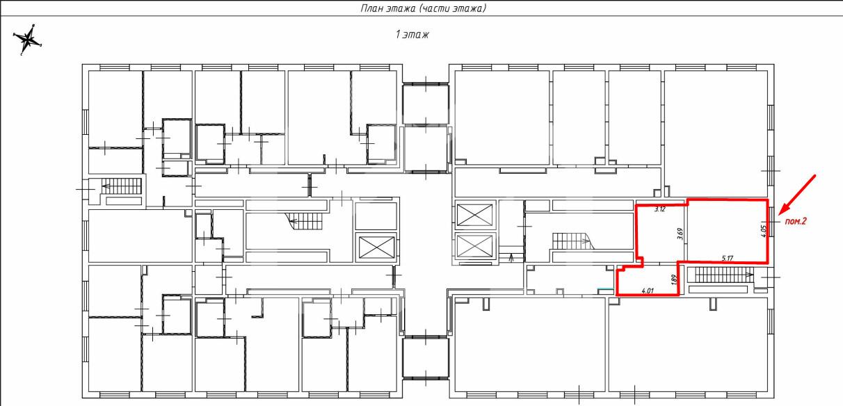
Аренда торговой площади на улице Варшавское шоссе, 238,6 м2
Аренда в месяц:
600 000 ₽
Цена м2/год:
30 168 ₽
г Москва, Варшавское шоссе, д 2
Помещение свободного назначения формата Street Retail в жилом комплексе "Бутово парк 2". Помещение располагается в плотном жилом массиве. Активно развивающийся район. Интенсивный пеший и автомобильный поток. В жилом комплексе в общей сложности 12 837 квартир. Комплекс состоит из 53 жилых домов. Удобный выезд на Варшавское и Симферопольское шоссе, МКАД. Вблизи помещения остановка общественного транспорта. Первый этаж 17-этажного жилого дома. Отдельный вход с улицы. Витринное остекление. Мокрая точка. Свободная планировка. Место для размещения вывески. Наземная парковка. Высота потолков: 4 м. Высокий рекламный потенциал.

