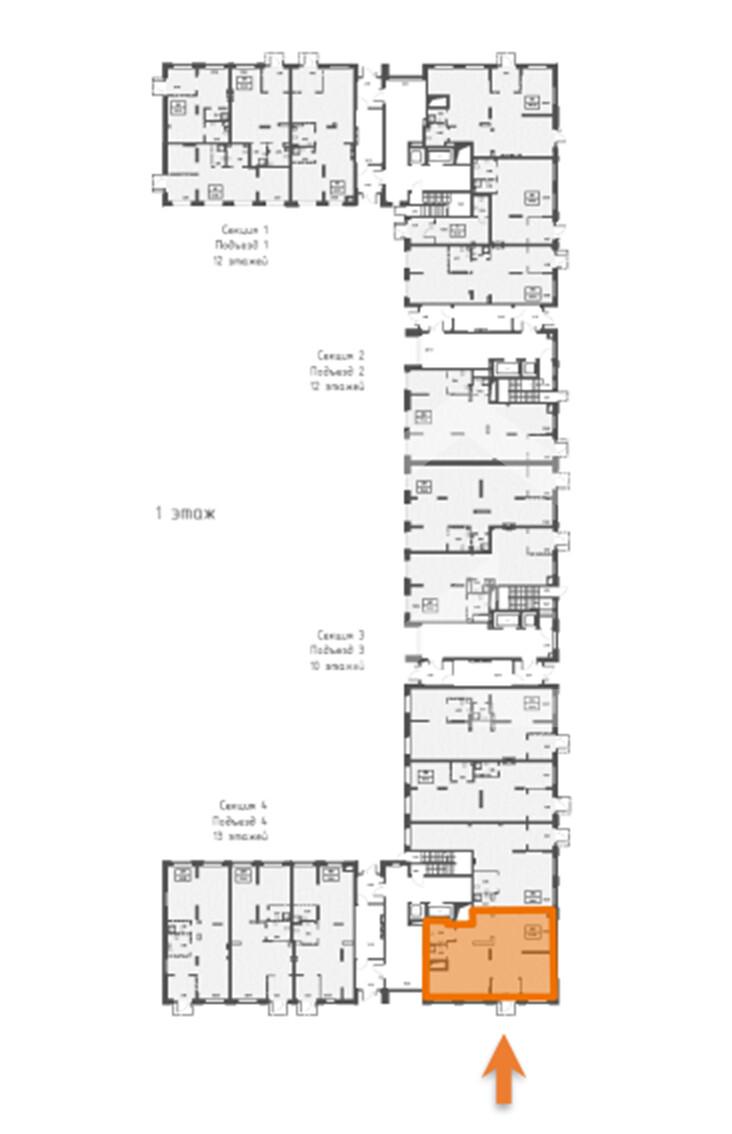
Продажа торговой площади на улице Лодочная, 50,4 м2
Цена:
28 440 720 ₽
Цена м2:
564 300 ₽
г Москва, ул Лодочная, д 27 к 2
Помещение свободного назначения формата Street Retail в ЖК "Алхимово". Корпус: 13. ЖК состоит из 17 корпусов переменной этажности (от 11 до 16 этажей), рассчитанных на 5 820 квартир. 6 минут на автомобиле от станции МЦД-2 "Силикатная". 870 м до Рязановского шоссе, 1.9 км до проспекта Славского, 4.8 км до Варшавского и Симферопольского шоссе. Плотный жилой массив. Сложившееся торговое окружение. Интенсивный автомобильный и пешеходный трафик. 1 этаж 13-этажного жилого дома. Отдельный вход с улицы. Открытая планировка. Электрическая мощность: 21 кВт. Высота потолков: 3 м. Витринное остекление. Возможность размещения вывески. На территории комплекса есть парковка и многоуровневый паркинг. Рядом остановка общественного транспорта.

