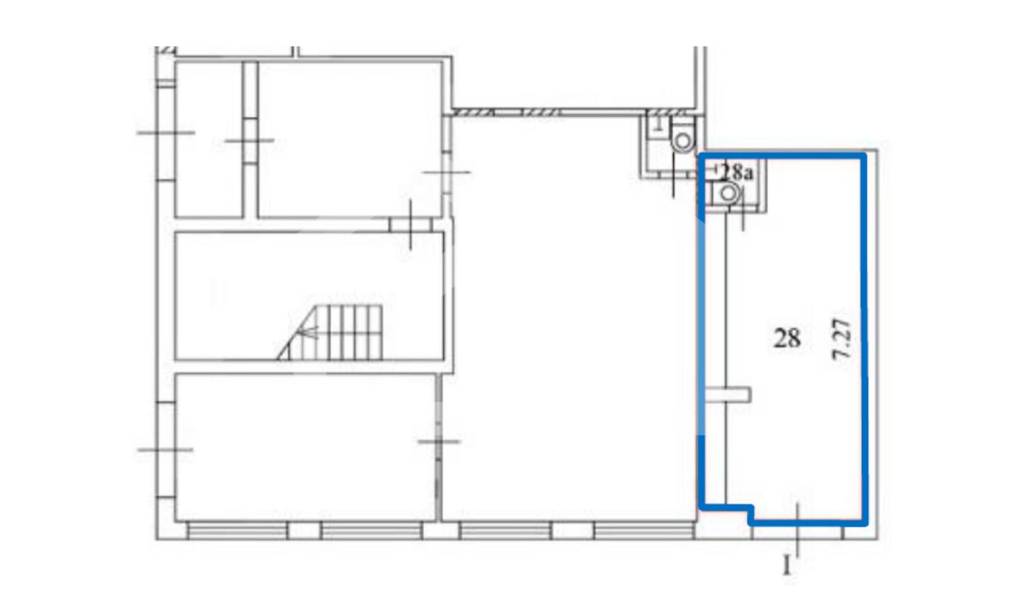
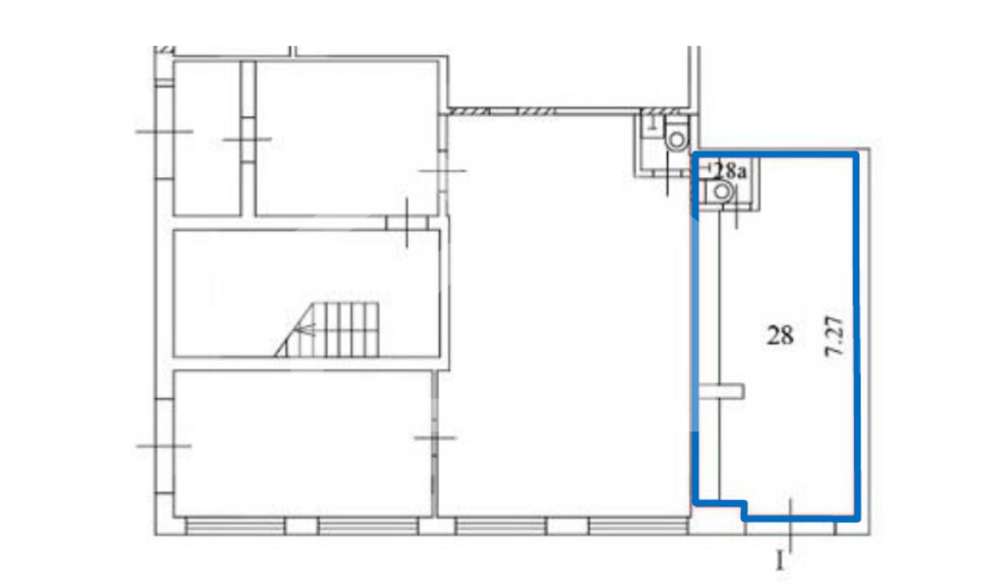
Продажа торговой площади на улице Лодочная, 50,4 м2
Цена:
28 440 720 ₽
Цена м2:
564 300 ₽
г Москва, ул Лодочная, д 27 к 2
Помещение свободного назначения в СВАО. Плотный жилой массив. Сложившееся торговое окружение. Соседи: ПВЗ «СДЭК», супермаркет «Чижик», автосалон «Автохаус». Ближайшая станция метро - Окружная (7 минут пешком). Интенсивный автомобильный и пешеходный трафик. 1 этаж. Отдельный вход с улицы. Свободная планировка. Электрическая мощность: 7 кВт. Высота потолков: 2,85 м. Наземная парковка. Рядом остановка общественного транспорта. Собственная УК.

