ID: 979066
Ссылка скопирована!
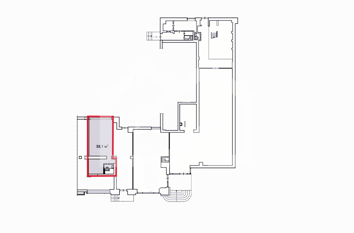
Аренда помещения свободного назначения у метро Октябрьская, 38,1 м2
ID: 979066
г Москва, Калужская пл, д 1 к 1
Октябрьская
2 мин.
Арендная плата (УСН):425 000 ₽/ в мес
Ссылка скопирована!
Арендная ставка:11 154 ₽/м² в мес
Площадь: 38,1 м²
г Москва, Калужская пл, д 1 к 1
Октябрьская
2 мин.
Описание
Характеристики объекта
Описание
Помещение свободного назначения формата торговое помещение на первой линии Ленинского проспекта. 2 минуты пешком от станции метро Октябрьская. Плотный жилой массив. Сложившееся торговое окружение. Интенсивный пешеходный и автомобильный трафик. 1 этаж. Отдельный вход со двора. Свободная планировка. Высота потолков: 4,4 м. Все городские инженерные коммуникации, санузел, отдельный прибор учета электричества.
Расположение
г Москва, Калужская пл, д 1 к 1
Октябрьская
2 мин.
Похожие объекты
































