Аренда склада на улице Индустриальная, 1 440 м2
Аренда в месяц:
482 400 ₽
Цена м²/год:
4 020 ₽
Воронежская обл, Новоусманский р-н, село Бабяково, ул Индустриальная, д 3
Производственно-складской комплекс формата «Лайт индастриал » в д. Кулаково, Раменский р-н МО, вторая очередь.
Преимущества:
Первая линяя Новорязанского шоссе, отдельный съезд.
До МКАД 22 км - 20 минут на автомобиле, до ЦКАД 24 км.
Транспортная доступность: 7 минут пешком до остановки автобусов Чулково-1; 10 минут на фирменном Шаттле к станции МЦД-3.
Собственная управляющая компания.
Парковки для личного и грузового транспорта с зонами отдыха для водителей.
Широкие проезды между зданиями - для большегрузного транспорта.
На территории - места общественного питания, площадки и помещения для проведения конференций и отдыха.
Трехслойные экологичные сэндвич панели на фасаде и кровле.
Трехслойные стеклопакеты.
Сборный железобетонный каркас.
Вертикальные связи вынесены на фасад для увеличения эффективности внутренних площадей.
Железобетонные фасады в придоковой зоне для увеличения эксплуатационных свойств здания.
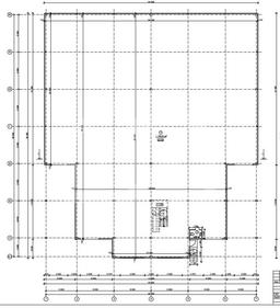
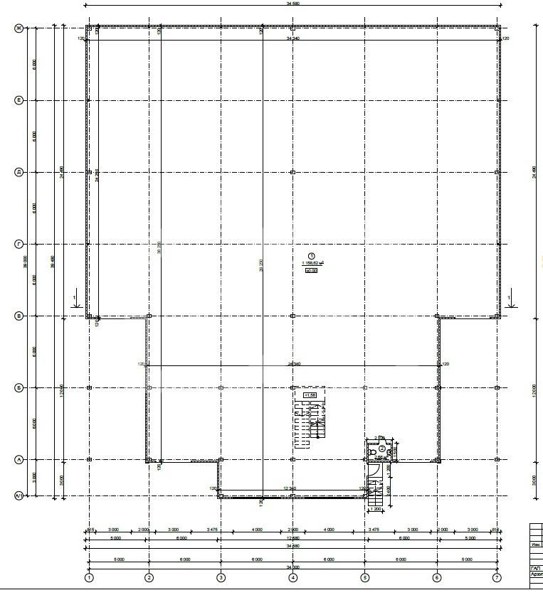
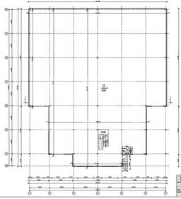
Технические характеристики:
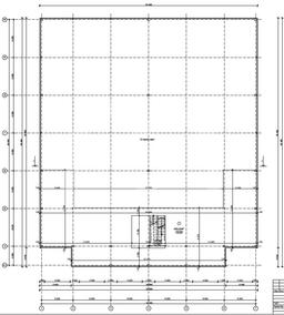
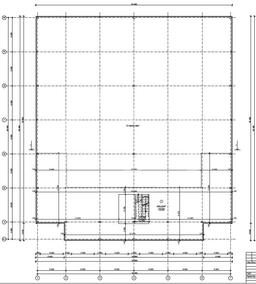
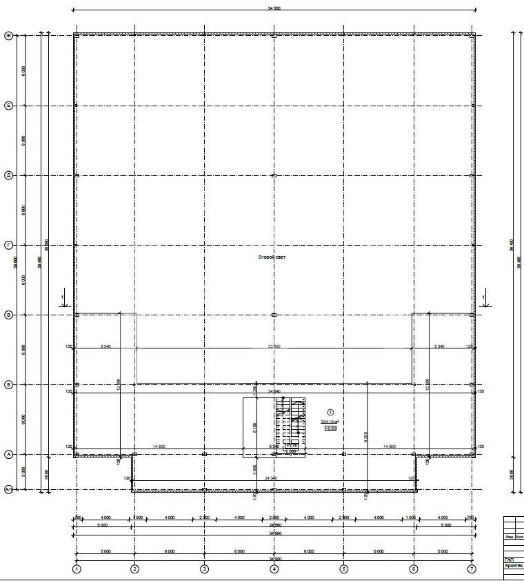
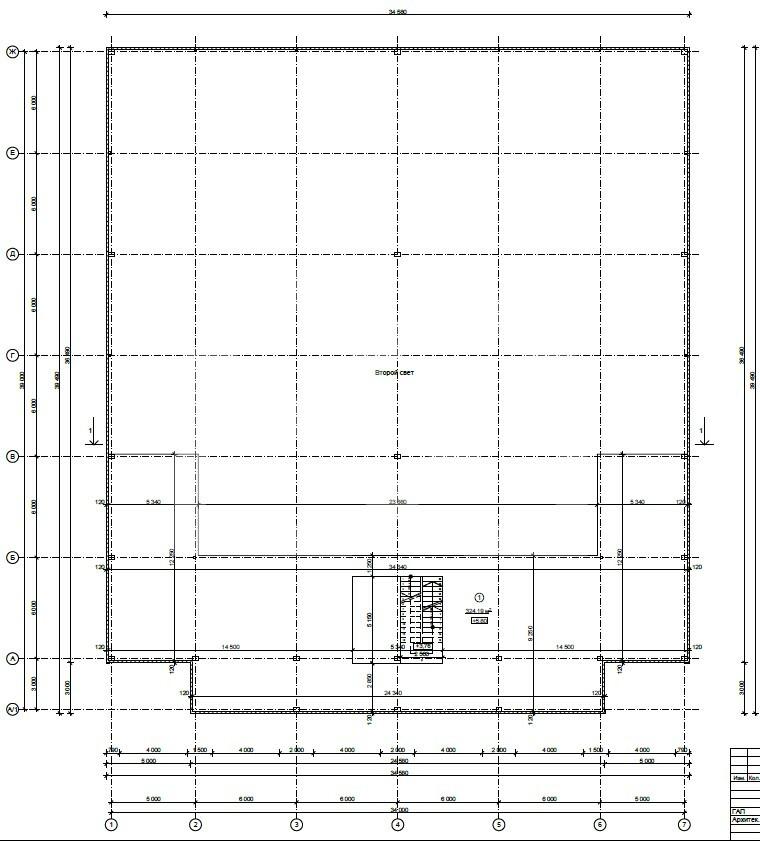
Площадь блока: 1 486 кв.м
Мезонин: 324 кв.м.
Автоматические доковые ворота на уровне "1,2" - 4 шт.
Тип: сухой (+14/+24).
Рабочая высота потолков: рабочая зона - 8 метров, мезонина - 5.8 м.
Допустимая нагрузка на пол: 6 т/кв.м, мезонин: 0.5 т/кв. м.
Количество доклевеллеров: 2.
Количество докшелтеров: 4.
Шаг колонн: 12х17 м.
Максимальная мощность электроэнергии: от 20 кВт на блок, с возможностью увеличения.
Теплоснабжение на модуль: мобильная тепловая установка с 2 газовыми котлами на 80 кВт/час на блок: 2x40 кВт.
Трехслойные экологичные сэндвич-панели на фасаде и кровле.
Трехслойные стеклопакеты.
Сборный железобетонный каркас.
Вертикальные связи вынесены на фасад для увеличения эффективности внутренних площадей.
Железобетонные фасады в придоковой зоне для увеличения эксплуатационных свойств здания.
ЗУ под зданием (+3 м по периметру) в собственности покупателя.
Возможность уменьшения блока до 250 кв.м.
Рассрочка платежа.
Без комиссии для арендатора.
Так как корректный адрес отсутствует на Яндекс.Карте, введен ориентировочный.
