Продажа склада в г. Люберцы, 1 472 м2
Цена:
206 080 000 ₽
Цена м2:
140 000 ₽
Московская обл, г Люберцы, поселок Чкалово, ул Токаревская, д 15
Производственно-складской комплекс формата «Light Industrial» в д. Кулаково, Раменский р-н МО, вторая очередь. Первая линяя Новорязанского шоссе, отдельный съезд. Так как корректный адрес отсутствует на Яндекс.Карте, введен ориентировочный. До МКАД 22 км - 20 минут на автомобиле, до ЦКАД 24 км. Транспортная доступность: 7 минут пешком до остановки автобусов Чулково-1; 10 минут на фирменном Шаттле к станции МЦД-3. ЗУ под зданием (+ 3 м по периметру) в собственности покупателя.
Технические характеристики:
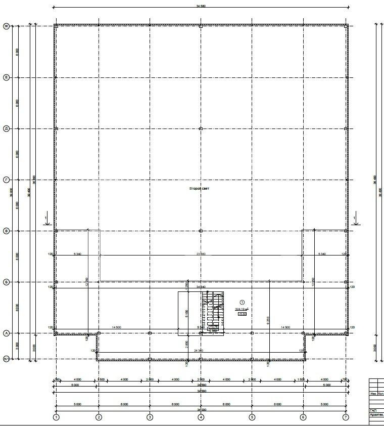
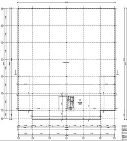
Площадь блока: 1486 кв. м
Предлагаемая к продаже площадь: 489 кв м.
Автоматические доковые ворота на уровне "1,2" - 1 шт.
Тип: сухой (+14/+24).
Рабочая высота потолков: рабочая зона- 8 метров.
Допустимая нагрузка на пол: 6 т/кв.м.
Количество доклевеллеров: 1.
Шаг колонн: 12х17м.
Максимальная мощность электроэнергии: от 20 кВт на блок с возможностью увеличения.
Теплоснабжение на модуль: Мобильная тепловая установка с 2 газовыми котлами на 80 кВт/час на блок: 2x40 кВт.
Трехслойные экологичные сэндвич панели на фасаде и кровле.
Трехслойные стеклопакеты.
Сборный железобетонный каркас. Вертикальные связи вынесены на фасад для увеличения эффективности внутренних площадей.
Железобетонные фасады в придоковой зоне для увеличения эксплуатационных свойств здания.
Возможность приобретения блоков: 1468 кв. м и 743 кв. м
Начало строительства второй очереди: август 2025 г.
Рассрочка платежа.
Без комиссии для покупателя.
Лайт индастриал - это современный складской комплекс с развитой внутренней инфраструктурой для комфортной работы. Широкие проезды между зданиями, удобные для маневрирования большегрузного транспорта. На территории предусмотрены места общественного питания, спортивный зал и площадки, помещения для проведения конференций и отдыха. Пожарная сигнализация. Подключены городские сети канализации и водопровода, газовое отопление. Парковки для личного и грузового транспорта с зонами отдыха для водителей. Собственная управляющая компания.
