Аренда склада в г. Химки, 8 250 м2
Аренда в месяц:
9 625 000 ₽
Цена м2/год:
13 992 ₽
Московская обл, г Химки, деревня Перепечино, стр 1Б/1
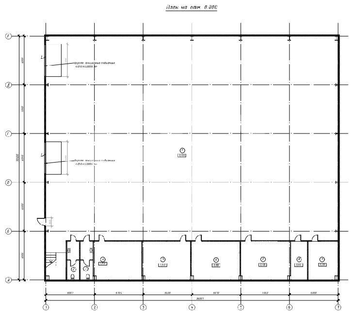
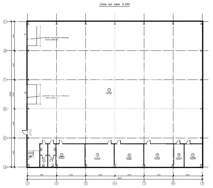
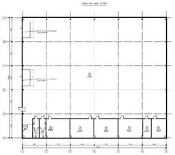
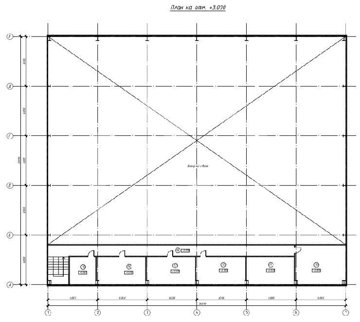
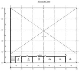
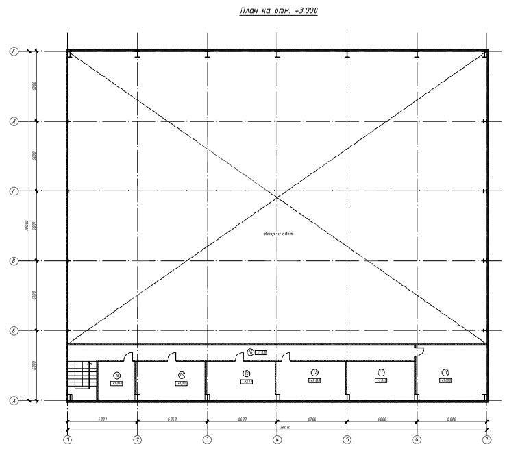
Три новых складских помещения класса "В" на первой линии Фряновского шоссе. Удобный подъезд для большегрузного автотранспорта, 29 км от МКАД. Развитая инфраструктура. 1 этаж. Открытая планировка + офисный блок. Полы - антипыль. Полностью оборудованы всем необходимым для эксплуатации. Водоснабжение - скважина, канализация - септик. Воздушное отопление от газовых котлов, газгольдеры. Приточная вентиляция. Земельный участок в собственности. Категория - земли промышленности, ВРИ - склады. В шаговой доступности остановка общественного транспорта.
Технические характеристики:
Три склада:
1) Общая площадь - 1200 кв.м., в т.ч. офисный блок на мезонине - 100 кв.м.
2) Общая площадь - 1200 кв.м., в т.ч. офисный блок на мезонине - 100 кв.м.
3) Общая площадь - 1000 кв.м., в т.ч. офисный блок на мезонине - 100 кв.м.
Высота потолка - 8 метров до ферм, 10 в коньке.
Сетка колонн - 9*3 метра.
Электрическая мощность - 150 кВт, с возможностью увеличения.
Земельный участок: 64 сотки.
Возможна установка кран-балки.
Прямой представитель собственника, без комиссии для арендатора.

