Аренда склада в г. Химки, 8 250 м2
Аренда в месяц:
9 625 000 ₽
Цена м2/год:
13 992 ₽
Московская обл, г Химки, деревня Перепечино, стр 1Б/1
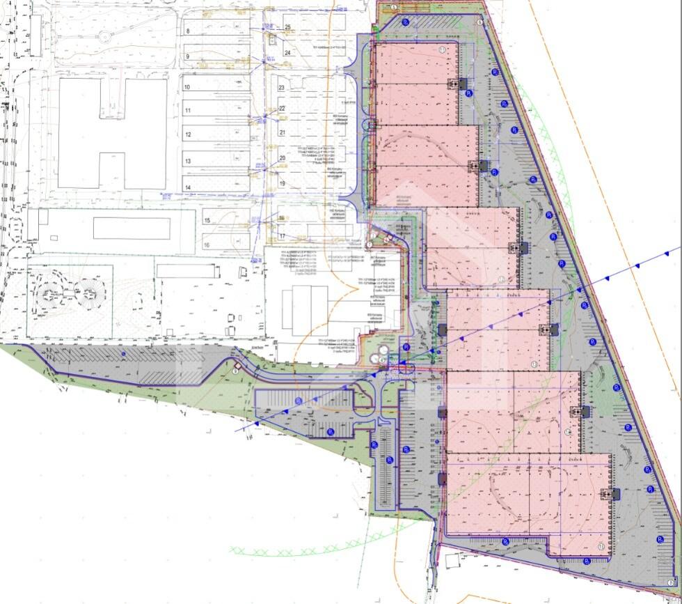
Производственно-складское помещение в новом индустриально логистическом кластере класса "А". 12 км от МКАД и 2 км от Лобни. 500 метров от Рогачевского шоссе и 3 км от Дмитровского шоссе. Удобная транспортная доступность. Завершение строительства второго этапа Северного обхода Лобни. 1 км от ж/д станции "Депо" и станции МЦД "Лобня". Площадь первой очереди кластера 96 000 м2. Ввод в эксплуатацию - начало 2026 года. Асфальтированные пути подъезда. Площадки для комфортного маневрирования фур. Парковка для грузового и легкого транспорта. Заведён полный объём коммуникаций, в т.ч. газ и собственные очистные сооружения. Спринклерная система пожаротушения.
Технические характеристики:
- блок 2.1 и 2.2 - 13000 м2 (общая площадь);
- в т.ч. АБК - 720 м2;
- в т.ч. мезонин: 900 м2;
- шаг колонн: 12х24 метра;
- рабочая высота потолка: 12 м;
- нагрузка на пол 8 тонн/м2 (на мезонине 1,5 тонны/м2);
- полы "антипыль";
- 14 доков на блок;
- 2 ворот в "ноль";
- электричество: от 150 кВт (с возможностью увеличения);
Широкий перечень ВРИ, включая пищевые и фарм. производства.
Доступ на полы не позднее января 2026 года.
Возможно деление площади.
Свяжитесь с нами для получения дополнительной информации!

