Продажа склада на улице 60-летия Октября проспект, 303,5 м2
Цена:
65 000 000 ₽
Цена м2:
214 168 ₽
г Москва, пр-кт 60-летия Октября, д 11А стр 5
Складской комплекс на ЦКАД в промышленном парке "Сенькино", категории Light Industrial в пос. Краснопахорское, г. Москва. Так как корректный адрес отсутствует на Яндекс.Картах, введен ориентировочный. Первая линия. Развитая транспортная инфраструктура: в 50 м выезд на ЦКАД, между Калужским и Киевским шоссе, 30 минут до МКАД. Доступ к основным магистралям. Стабильный автомобильный трафик по ЦКАД. 1, 2 этаж. Зона погрузки/разгрузки: в каждом блоке — погрузочные доки на уровне 1,2 м от земли или ворота на уровне 0 м. По запросу возможна установка въездной рампы или пандуса. Открытая планировка + офисные блоки. Офисные помещения с отделкой входят в стоимость и расположены на 2 уровнях, что позволяет разделить функции офиса и торгового зала. Пол: бетонный с антипылевым покрытием. Вентиляция: офисные помещения-вытяжка; складские помещения-естественная. Система видеонаблюдения. Плоская кровля с внутренним водостоком. Возможность установления кран-балки. Парковка на территории комплекса для разных типов а/м. Рядом остановки общественного транспорта.
Технические характеристики:
Здание - корпус Е.
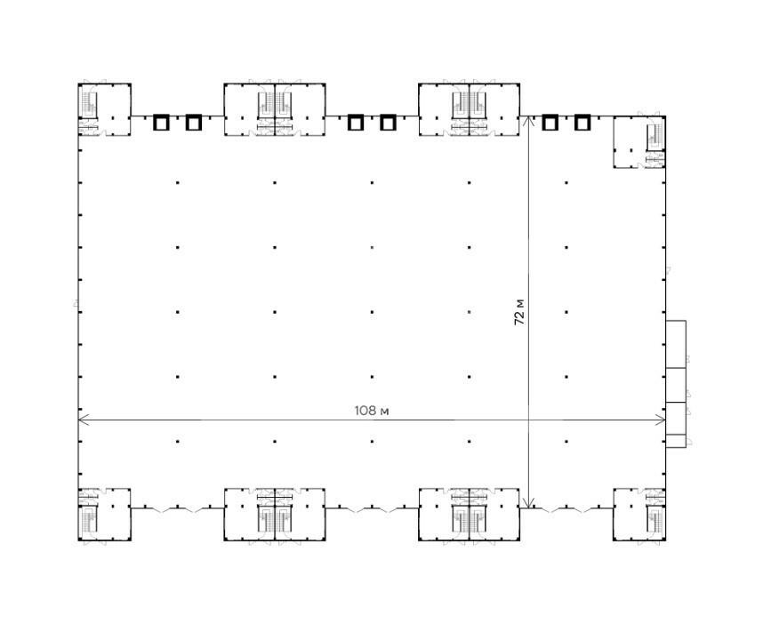
Площадь блока: 9557 м2:
производственно-складская часть: 7418 м2,
административно-офисная - 2139 м2.
Высота потолков: 8 метров рабочая.
Шаг колонн: 12х18.
Нагрузка на пол: 5 т/м2.
6 доковых ворот на высоте 1,2 м., 6 ворот в 0.
Парковка: 24 легковых и 12 грузовых места.
Электрическая мощность: 30 вт/м2 - 270 кВт с возможностью увеличения.
Готовность - 3 кв.2026 г.