Аренда офиса в БЦ Башня Федерация, 1 150 м2
Аренда в месяц:
9 372 500 ₽
Цена м2/год:
97 800 ₽
г Москва, Пресненская наб, д 12
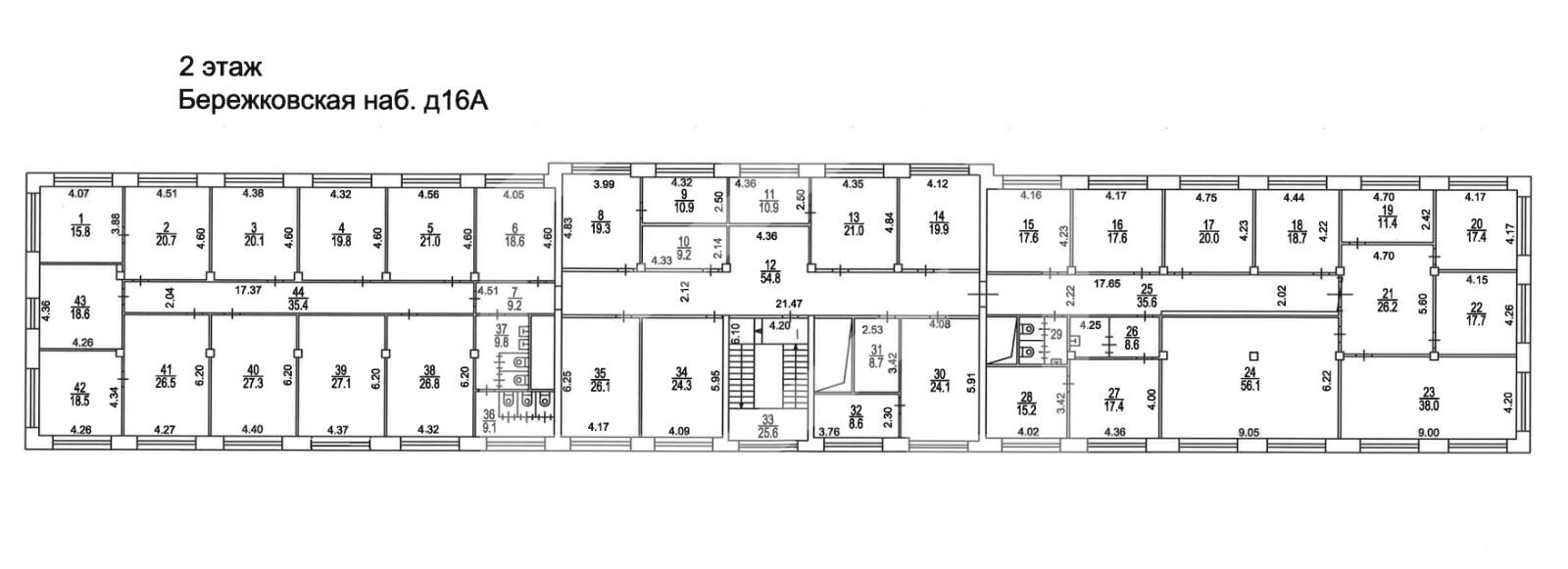
Бизнес-центр «Риверсайд Стейшн» находится в западном округе Москвы, по адресу: Бережковская набережная, 16А. Ближайшая станция метро — «Киевская», до неё можно дойти за 8 минут пешком. Комплекс расположен в непосредственной близости от крупных транспортных магистралей, удобный доступ к центру города. Рядом с бизнес-центром есть остановки общественного транспорта. Офисное помещение находится на 2 этаже 4-ого здания. Площадь в аренду: 984 кв м. Кабинетная планировка. Выполнена внутренняя отделка. Вентиляция Приточно-вытяжная вентиляция. Спринклерная система пожаротушения. Электрическая мощность более 90 Вт на кв м. Доступ к центральному ресепшену. Круглосуточная охрана. Системы видеонаблюдения. Подземный паркинг.

