Продажа торговой площади на улице Лодочная, 50,4 м2
Цена:
28 440 720 ₽
Цена м2:
564 300 ₽
г Москва, ул Лодочная, д 27 к 2
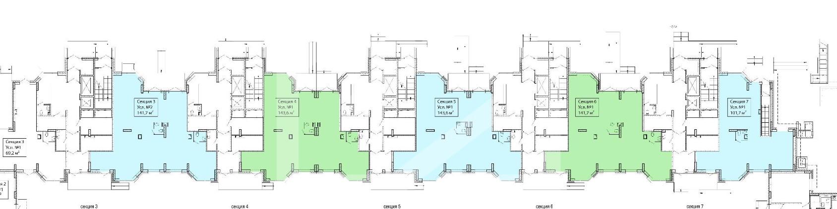
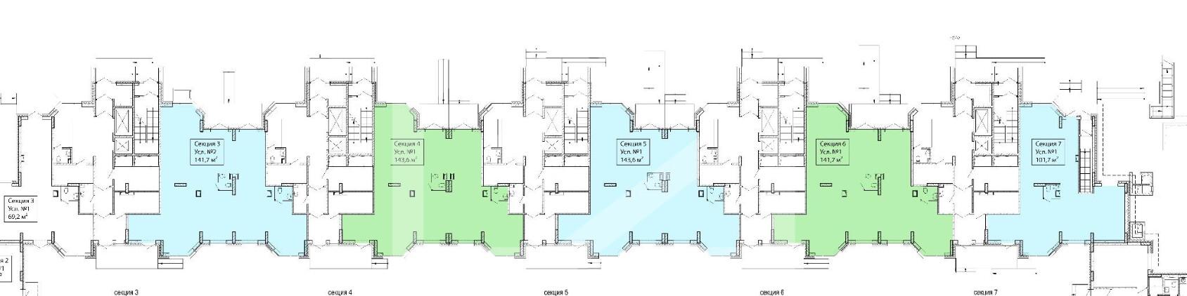
Предлагаем торговые помещений формата Street-retail в ЖК "Восточный", площадью 670 кв. м, состоящие из отдельных блоков со следующими метражами:
1 помещение: 141,7 кв.м
2 помещение: 143,6 кв.м
3 помещение: 143,6 кв.м
4 помещение: 141,7 кв.м
5 помещение: 101,7 кв.м
Преимущества объекта:
-Все помещения расположены на 1 этаже 17-этажного жилого дома.
-ЖК состоит из 16 корпусов переменной этажности (от 14 до 17 этажей), рассчитанных на 5 000 квартир;
-Первая линия домов;
-Удобная транспортная доступность: рядом ЦКАД, 3.5 км до
Нахабинского и Ильинского шоссе, 4 км до Звенигородского шоссе, 4.7 км до
Луцинского шоссе;
-Плотный жилой массив;
-Сложившееся торговое окружение (Улыбка Радуги, Здравсити,
Буханка, Дикси и др);
-Высокий автомобильный и пешеходный трафик;
-Отлично просматривается, находится в легком доступе для
потенциальных клиентов;
-Открытая планировка, позволяющая использовать пространство под
различные нужды;
-Витринное остекление;
-Возможность размещения вывески;
-Зона погрузки/разгрузки;
-Наземная парковка;
-территория не огорожена;
-Интенсивный пешеходный трафик;
-отличный потенциал для сдачи помещений в аренду.
Есть оферты от арендаторов
(ПВЗ Ozon, WB, Цветы, Аптека, Строительный магазин, Детский клуб, Салон
красоты, Кофейня и др.).
Технические параметры объекта:
-9 отдельных входных групп с фасада и 5 со двора;
-высота потолков: 4.2 м;
-открытая планировка.
Свяжитесь с нами для получения дополнительной информации!

