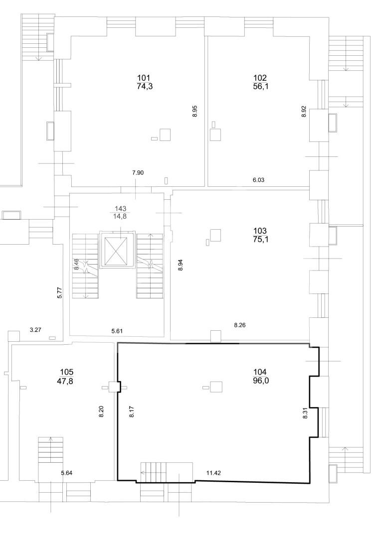
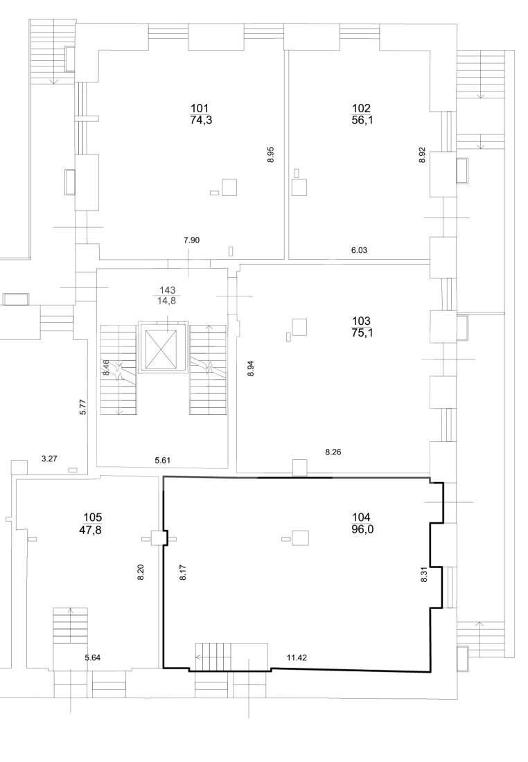
Продажа готового бизнеса в ЖК Клубный город на реке Primavera, 56,1 м2
Цена:
60 000 000 ₽
Цена м2:
1 069 518 ₽
г Москва, Покровская наб, д 16
Кадастровый номер: 77:01:0006036:2563
Помещение свободного назначения с арендатором в БЦ Loft FM.
Первая линия Нижегородской улицы. Интенсивный автомобильный и пешеходный трафик.
Метро Марксистская 5 минут пешком. Современный комплекс лофт-апартаментов бизнес-класса. Рядом с основным входом автобусная остановка. Парковка бесплатная во дворе.
Технические характеристики:
Арендатор :

