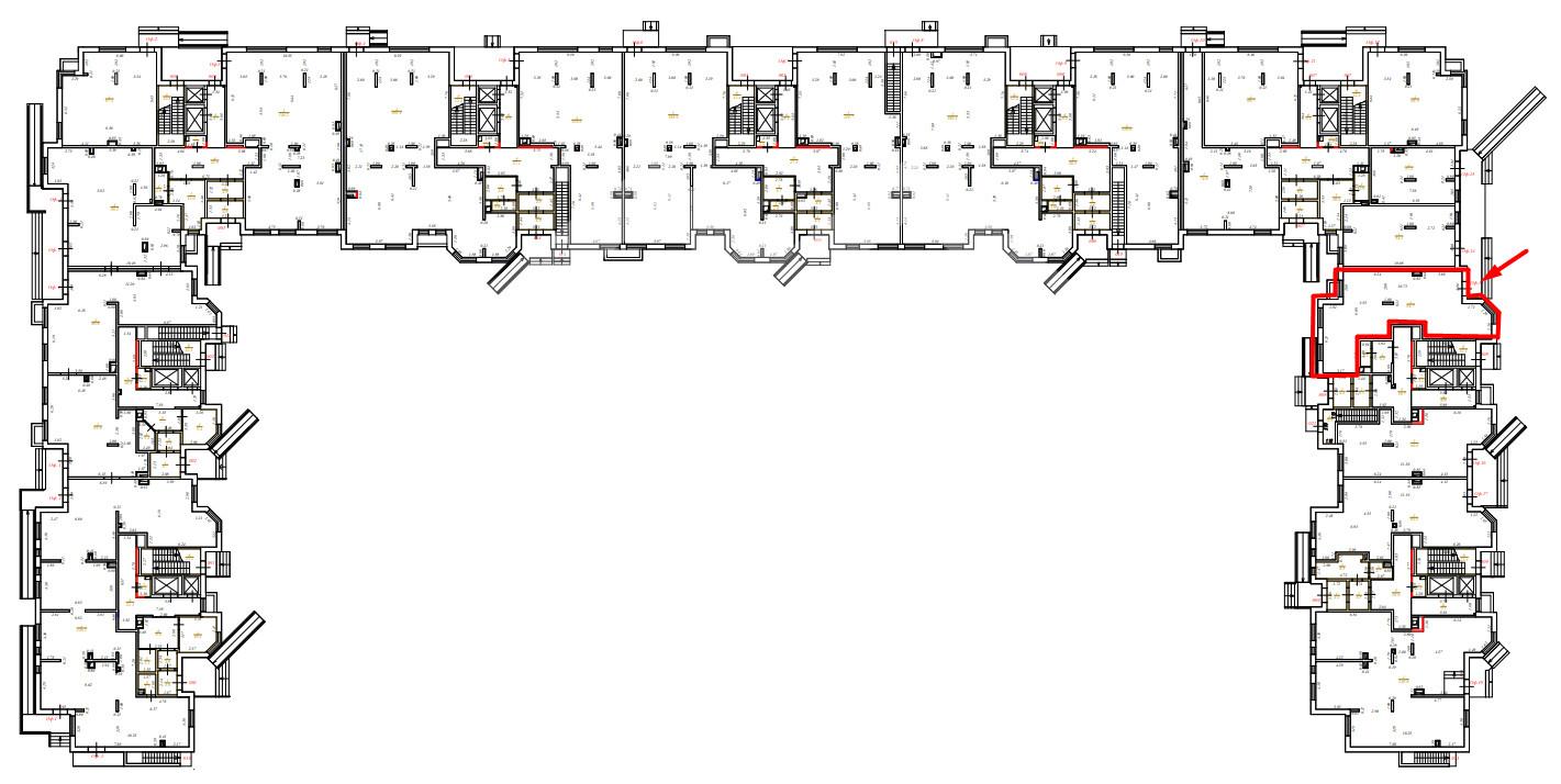
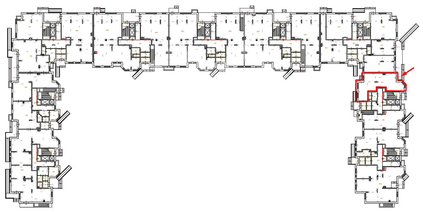
Продажа помещения свободного назначения на улице Молодогвардейская, 153 м2
Цена:
76 500 000 ₽
Цена м2:
500 000 ₽
г Москва, ул Молодогвардейская, д 4 к 1
Помещение свободного назначения формата Street Retail в Звенигороде в ЖК "Восточный". Микрорайон на 12 тысяч жителей. В доме 845 квартир. Центральная аллея микрорайона. Плотный жилой массив. Сложившееся торговое окружение. Дефицит коммерческих помещений в ближайшем окружении. Первая линия. Первый этаж 17-этажного жилого дома. Высота потолков: 3,5 м. Электрическая мощность: 17 кВт. Наземная парковка. Витринное остекление.

