ID: 944475
Ссылка скопирована!
Аренда помещения свободного назначения у метро Щукинская, 2 500 м2
ID: 944475
г Москва, Волоколамское шоссе, д 47 стр 11
Щукинская
8 мин.
Арендная плата :5 000 000 ₽/ в мес
Ссылка скопирована!
Арендная ставка:2 000 ₽/м² в мес
Площадь: 2 500 м²
г Москва, Волоколамское шоссе, д 47 стр 11
Щукинская
8 мин.
Описание
Характеристики объекта
Описание
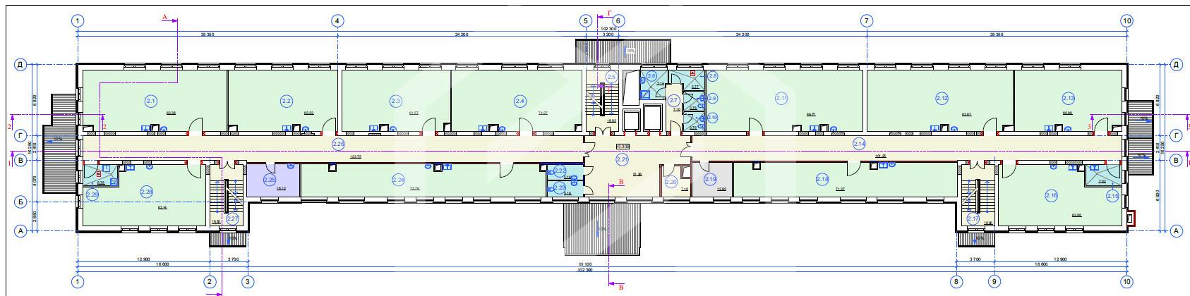
Предлагается часть здания 2-ой и 3-ий этажи под медицинские услуги в пешей доступности от метро Щукинская. В здании 4 этажа, подвал, 2 лифта грузовой и пассажирский, парковка наземная для 15 машин.
Вид разрешенного использования: объекты размещения стационарных лечебно-профилактических учреждений со специальными требованиями к размещению.(1.2.17).
В настоящее время произведена полная реконструкция здания, включая систему коммуникаций. Частично помещения готовы под использование. Возможна корректировка проекта под требования арендатора.
Расположение
г Москва, Волоколамское шоссе, д 47 стр 11
Щукинская
8 мин.
Похожие объекты


































