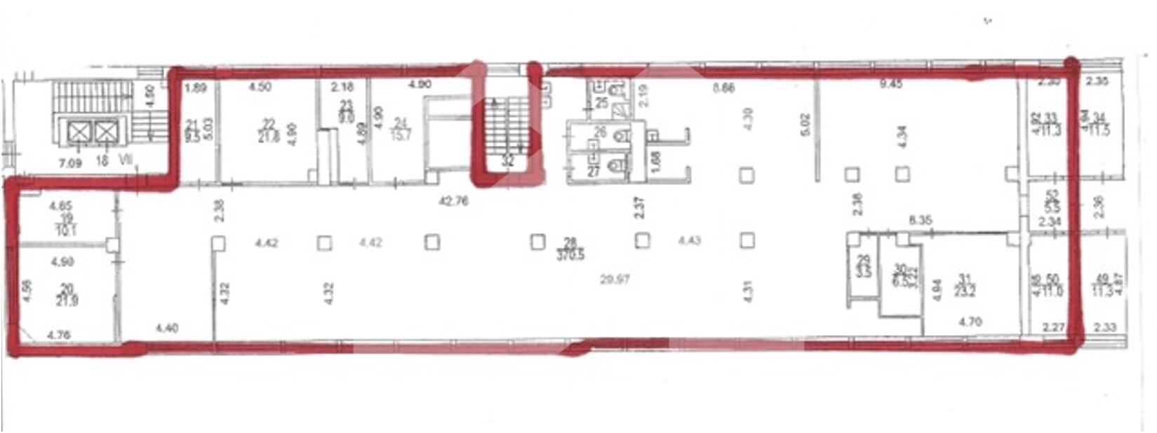
Аренда офиса на улице Загородное шоссе, 508 м2
Аренда в месяц:
1 058 333 ₽
Цена м2/год:
24 996 ₽
г Москва, Загородное шоссе, д 1
Офис расположен на последнем, 6-м этаже Бизнес-центра "Сокол Плейс". Смешанная планировка, офисная отделка. В непосредственной близости проходят такие магистрали, как Ленинградское шоссе, Ленинградский проспект, Волоколамское шоссе. Станции «Сокол» и «Аэропорт» находятся в пределах пятнадцати минут пешком, примерно столько же времени займет дорога до станции МЦК «Панфиловская». Остановка автобусов – в 350 м. Здание оборудовано новейшими системами кондиционирования и приточно-вытяжной вентиляцией. Контрольно-пропускная система, работает круглосуточная охрана, служба ресепшн, есть кафе для сотрудников офисов. Наземный паркинг. Помещение - свободно с 15.05.2025.

