Продажа склада на улице 60-летия Октября проспект, 303,5 м2
Цена:
65 000 000 ₽
Цена м2:
214 168 ₽
г Москва, пр-кт 60-летия Октября, д 11А стр 5
Отдельно стоящее складское здание с арендатором в САО, Восточное Дегунино. Центр крупной промышленной зоны. 10 минут пешком от ст. "Бескудниково". 1 этаж. Заменены все коммуникации: ХВС, канализация. Отопление центральное. Охраняемая территория, заезд через шлагбаум. Наземная парковка.
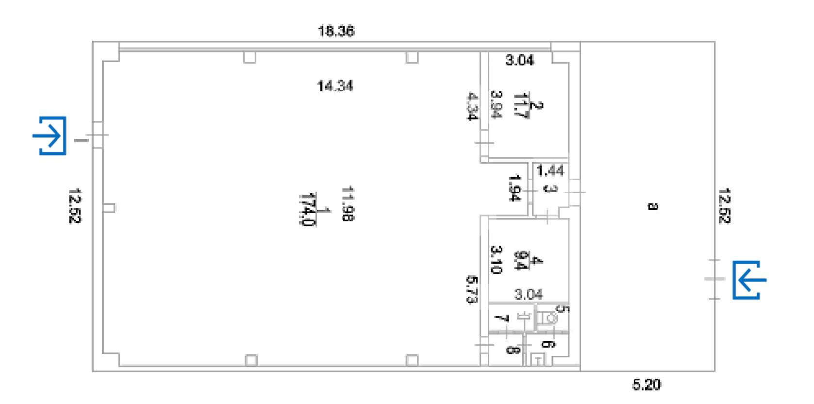
Технические характеристики:
Общая площадь: 203.5 м2.
Высота потолков: 3,1-6,94 м.
Электроэнергия: 80 кВт.
Арендатор:
техцентр «H64» / КДА.
МАП: 771 500 р.
ГАП: 9 258 000 р.
Доходность: 13,72 %.
Окупаемость: 7,3 года.